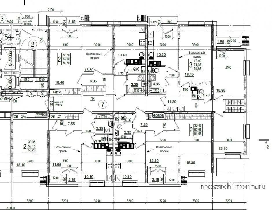
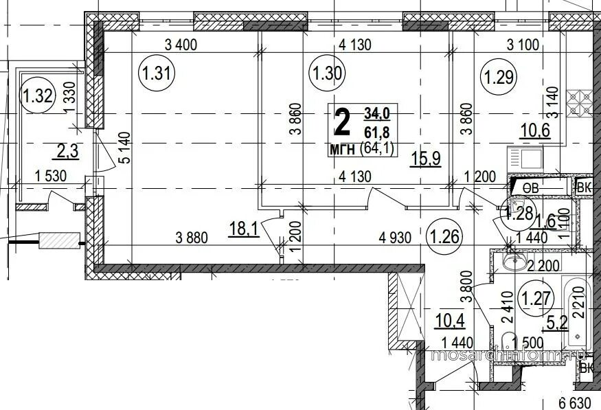
Реновация линейный проезд