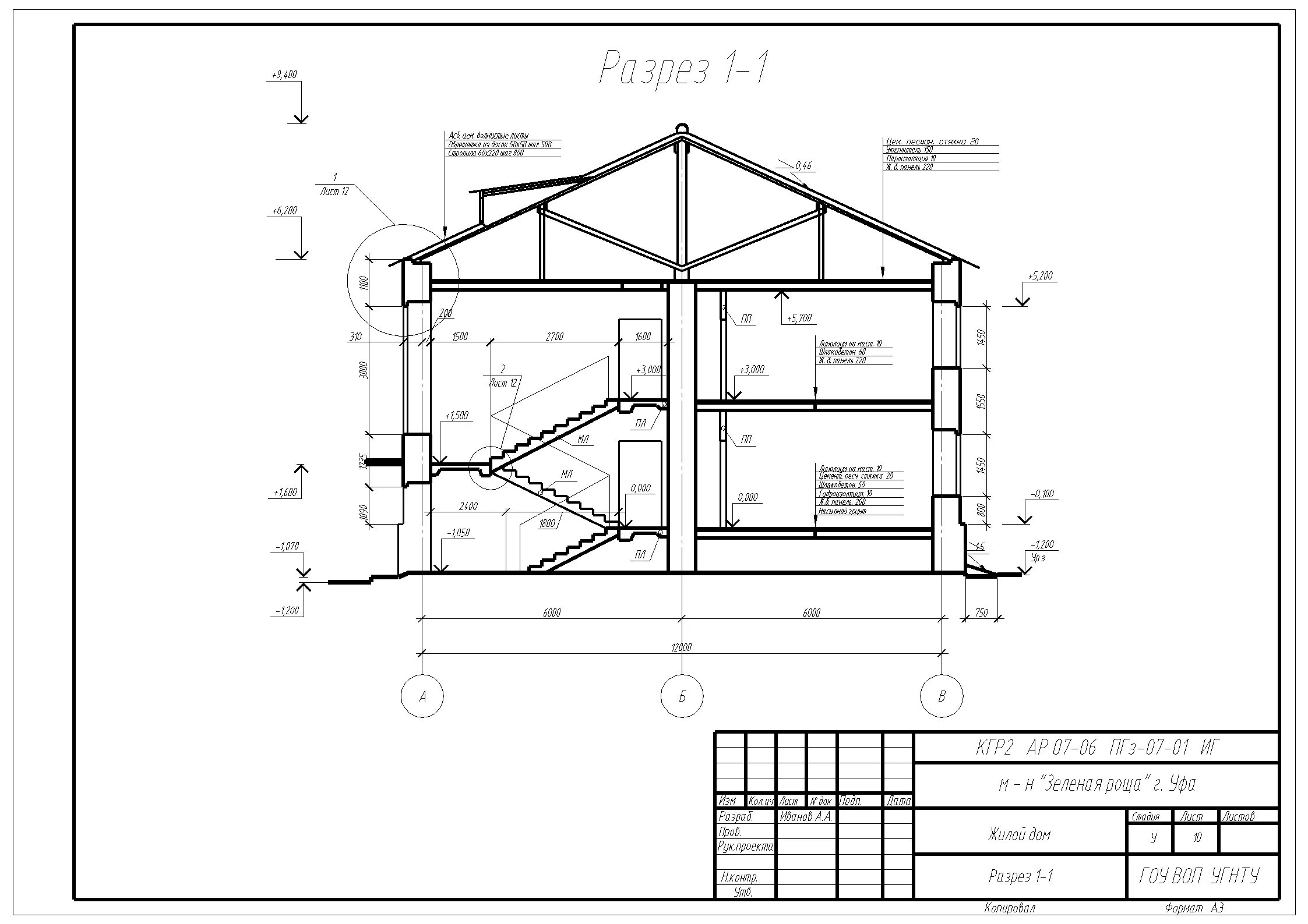
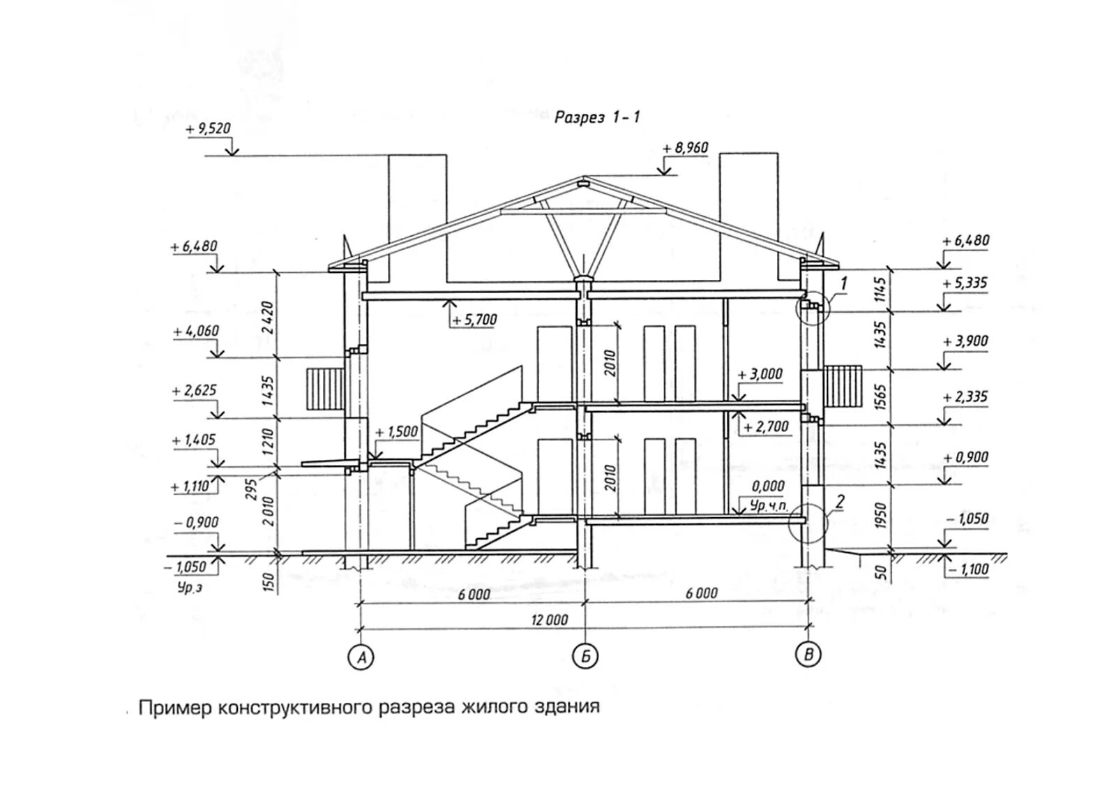
Разрез дома чертеж