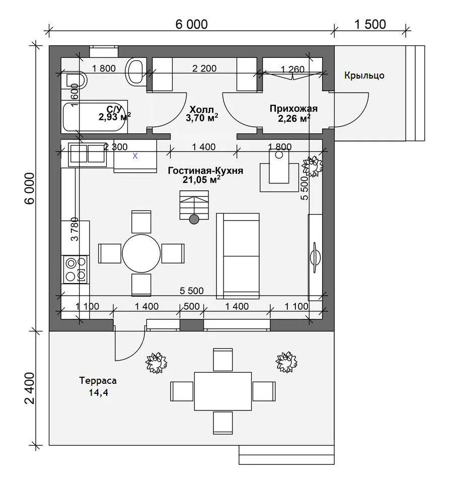
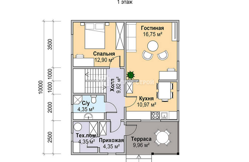
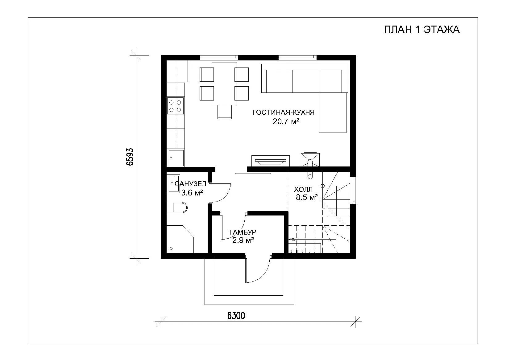
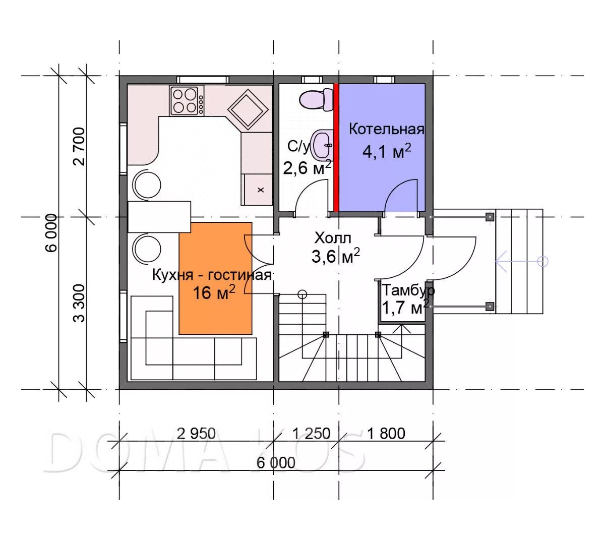
Размеры маленьких домов