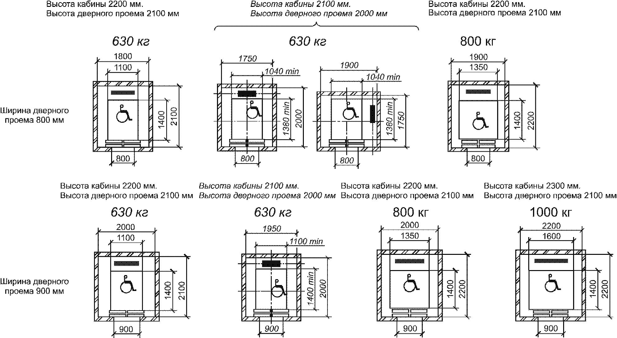
Размеры лифтов в общественных зданиях