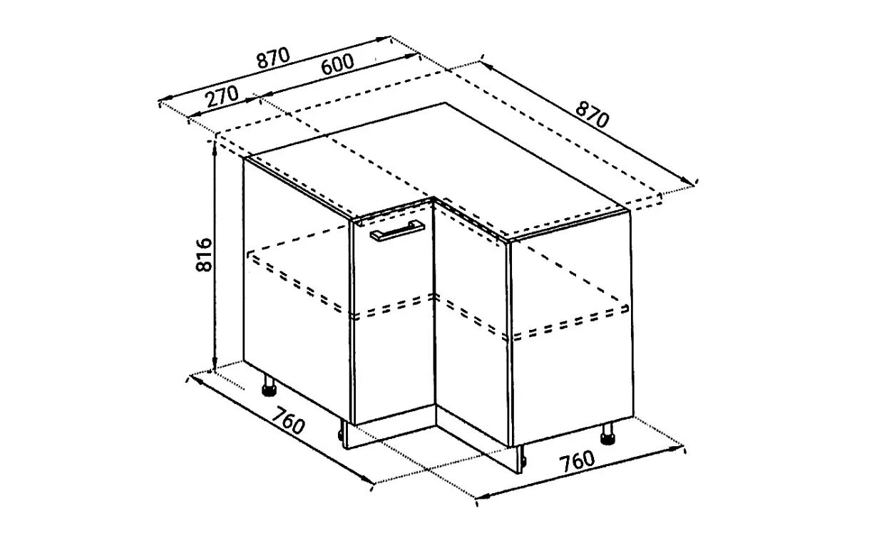
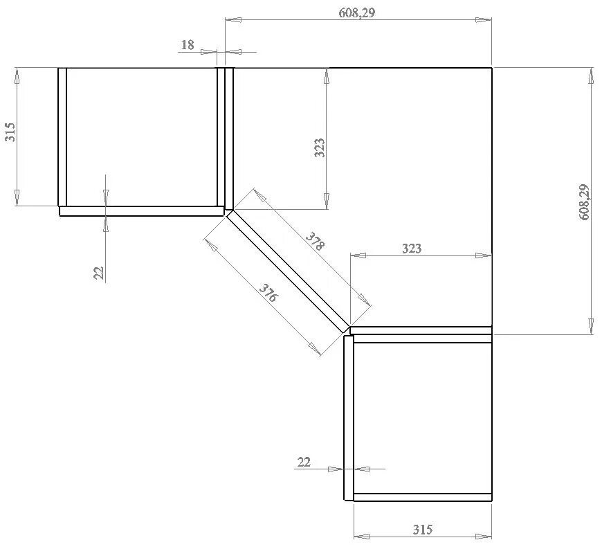
Размер углового кухонного шкафа