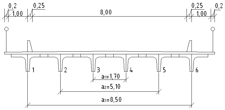
Расстояние между осями балок