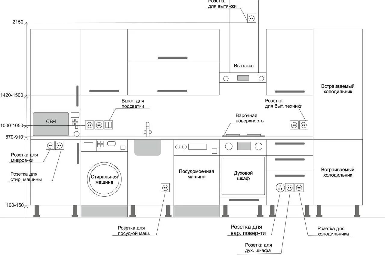
Расстояние эл