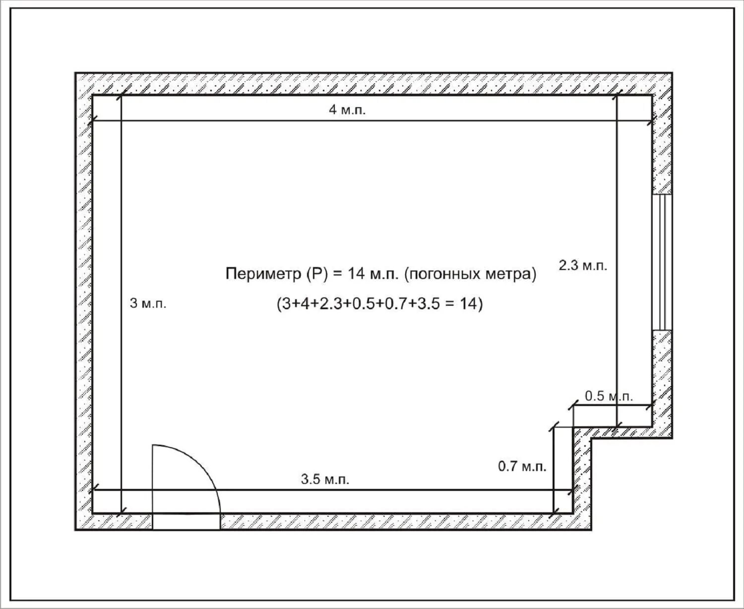
Рассчитать площадь помещения в квадратных метрах