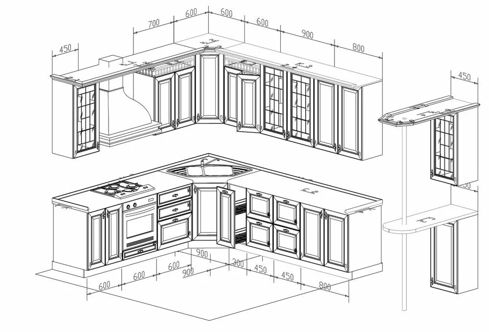
Раскладка кухни