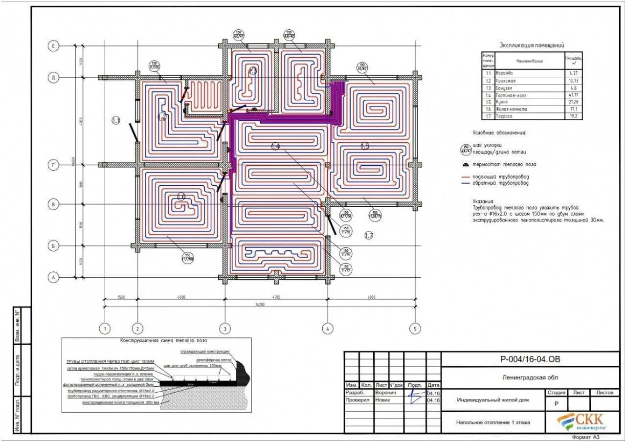
Расчет контуров водяных теплых полов