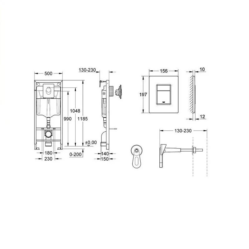
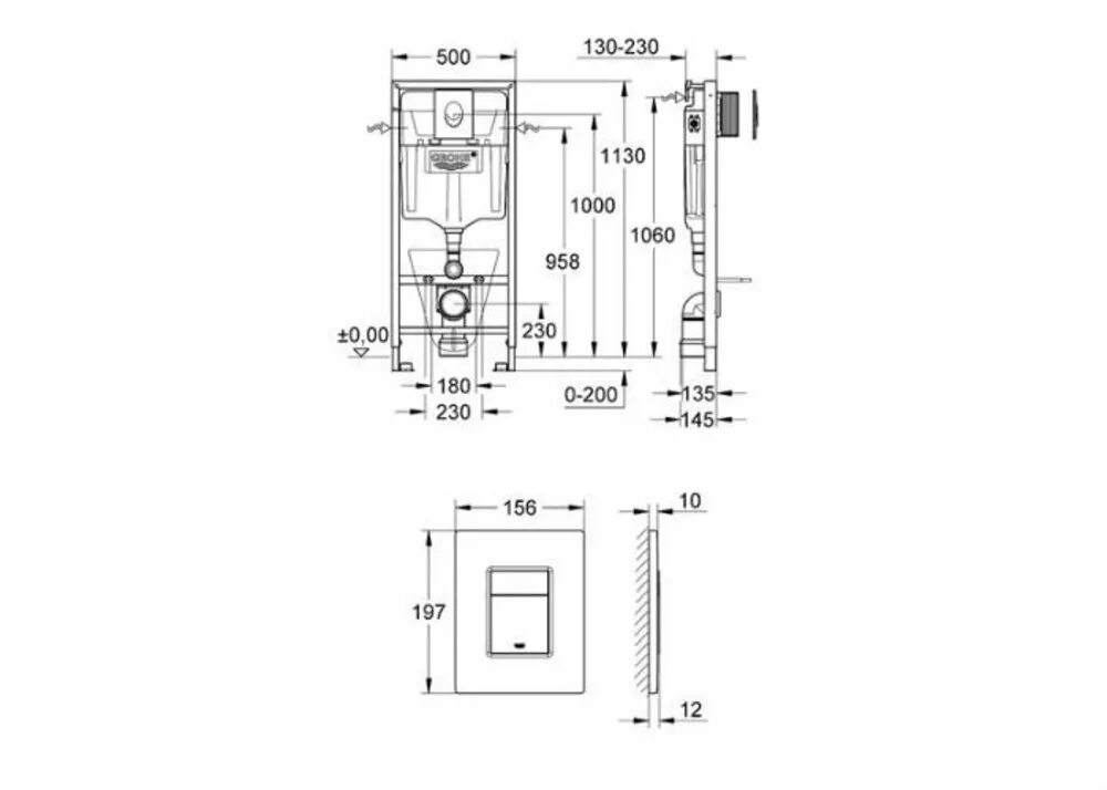
Rapid sl 38772001