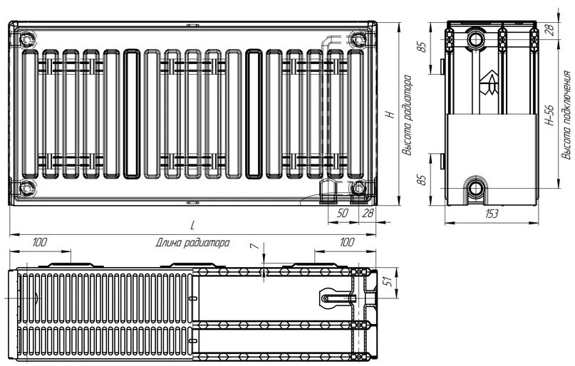
Радиатор панельный тип 20