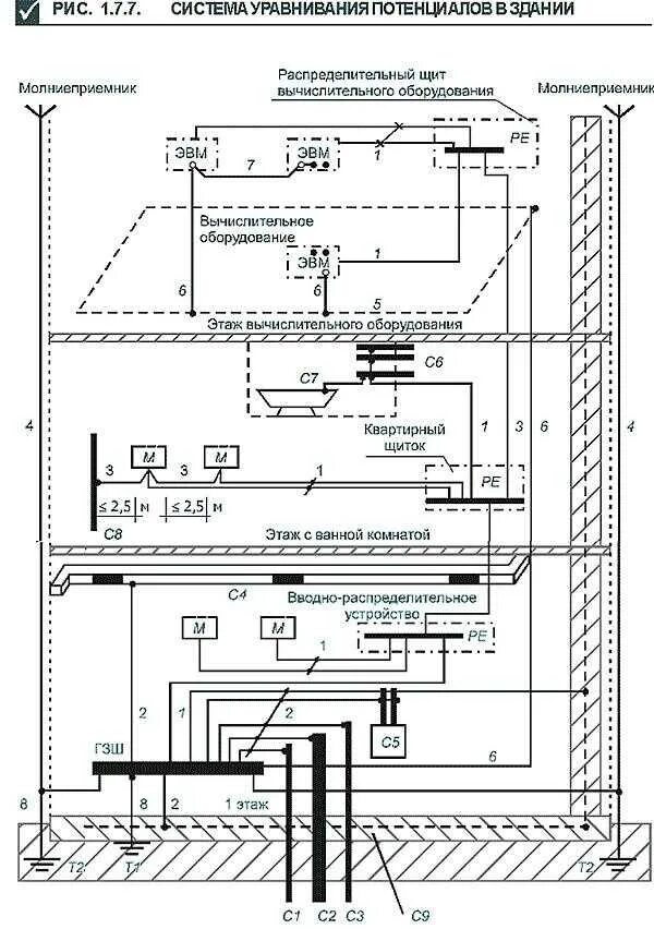
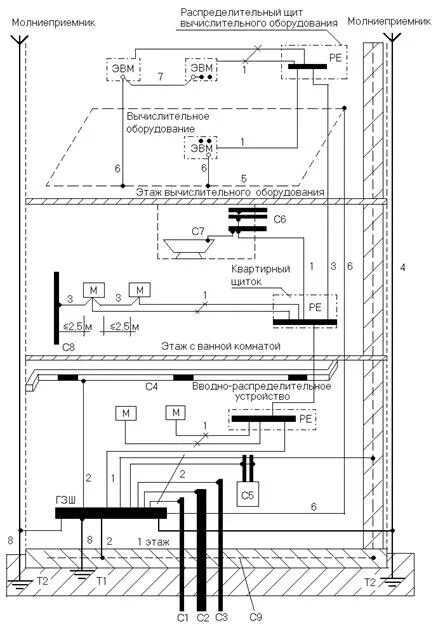
Пуэ жилых зданий