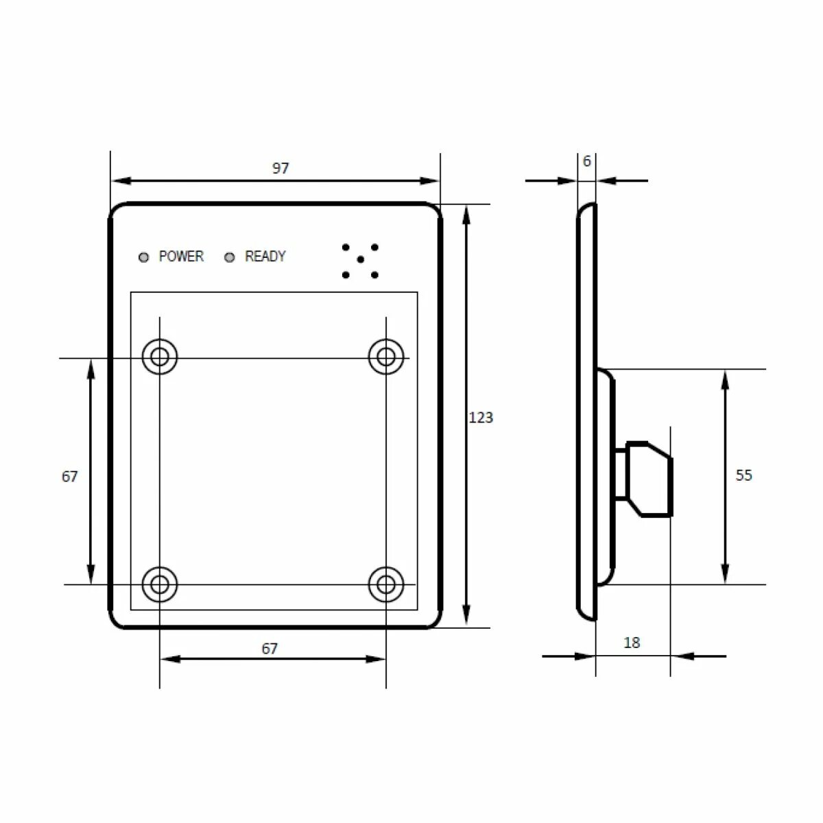
Proximity 2