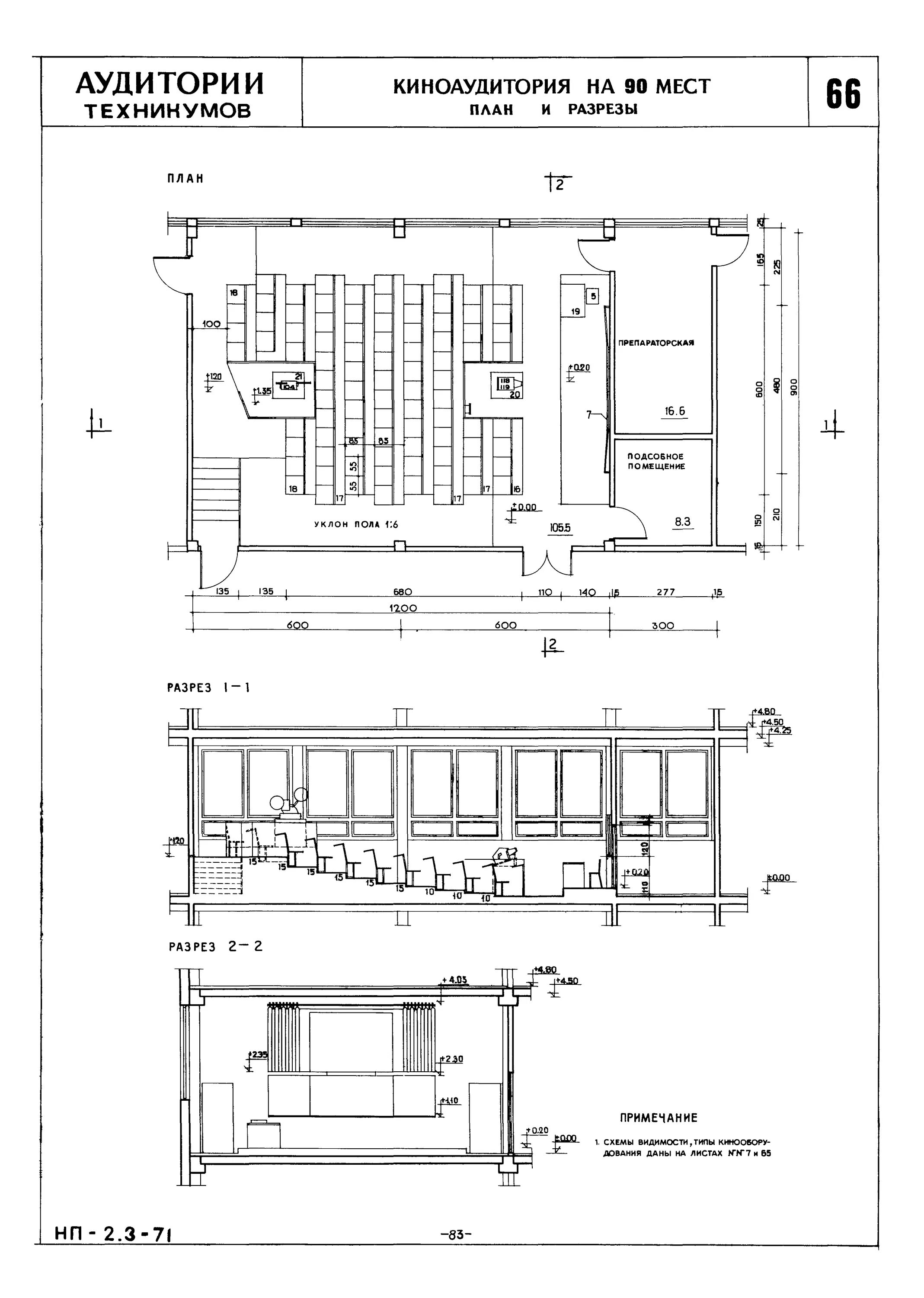
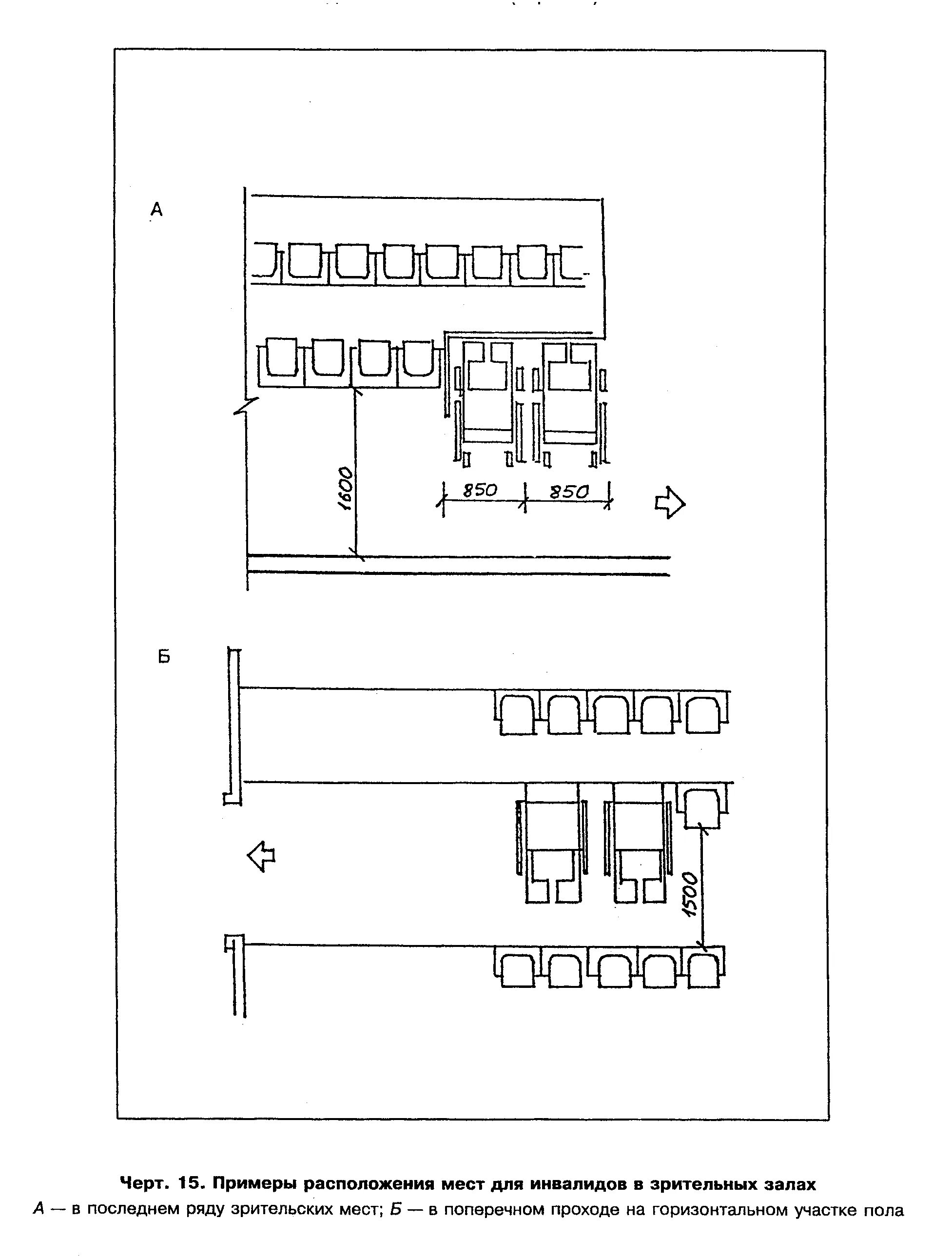
Проходы в зрительном зале