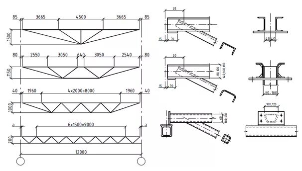
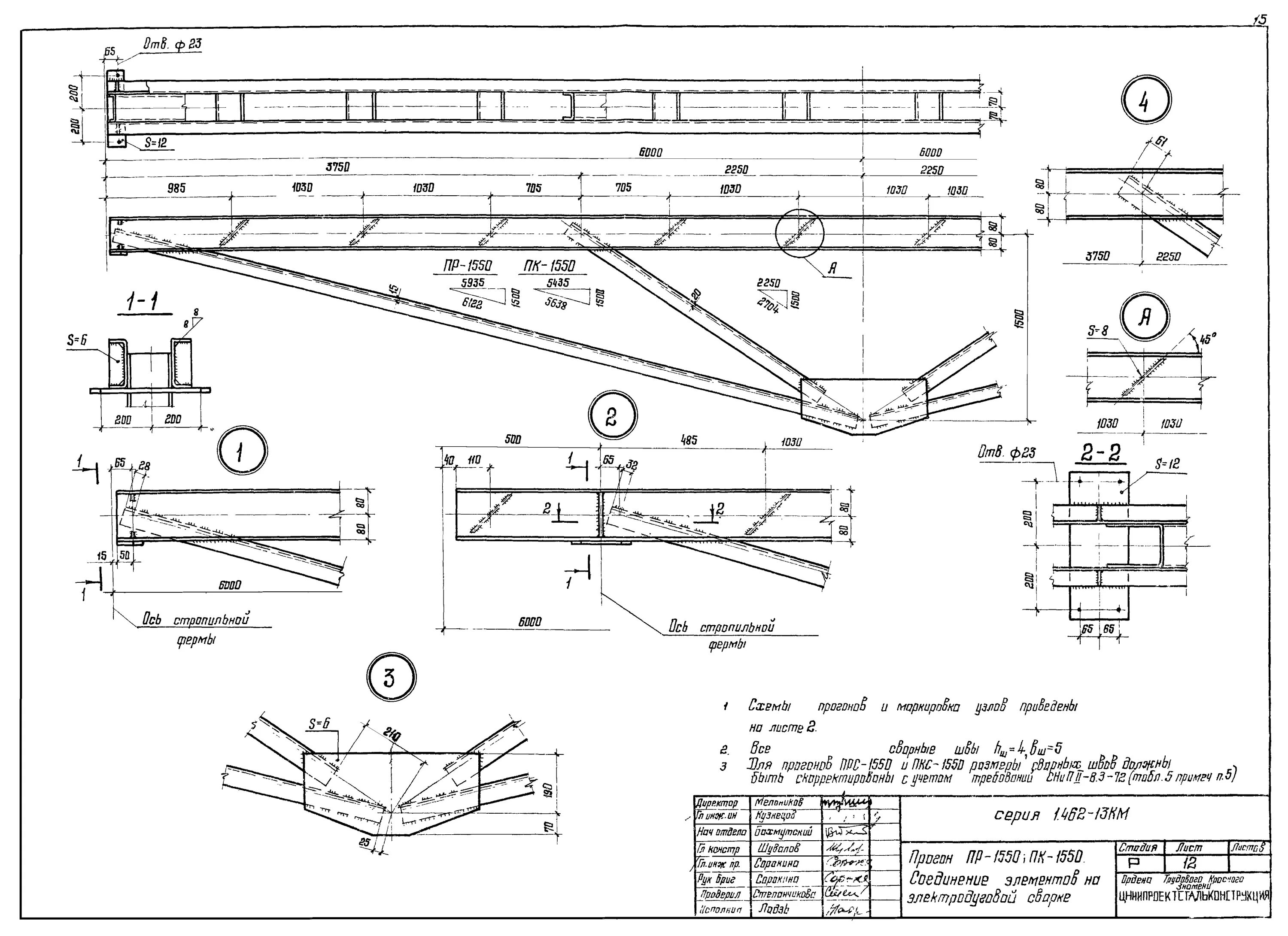
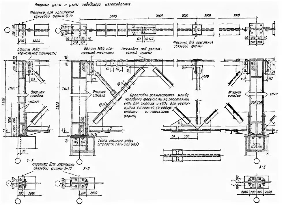
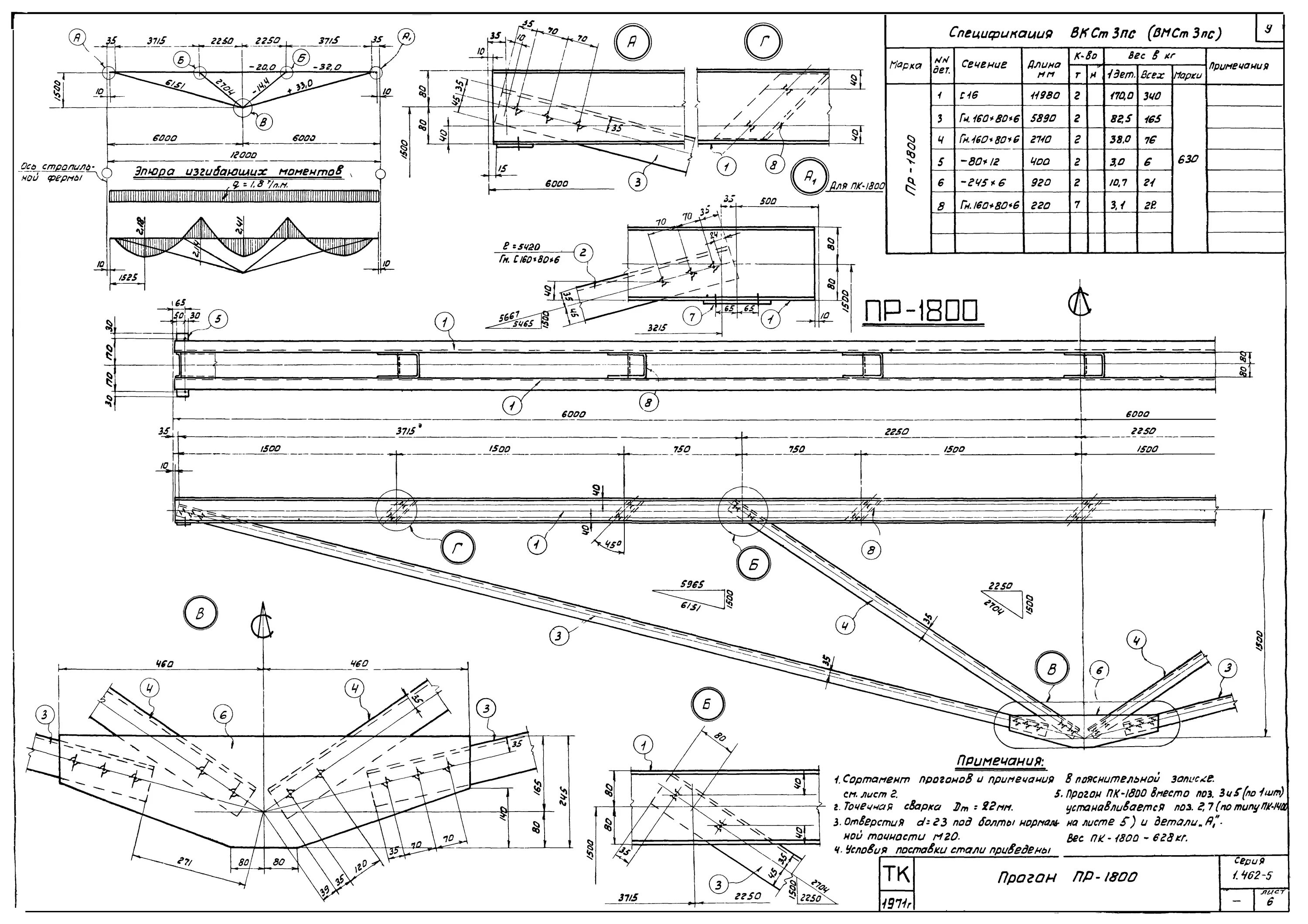
Прогоны 12 м