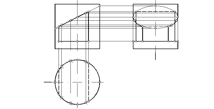
Проекция цилиндра с вырезом