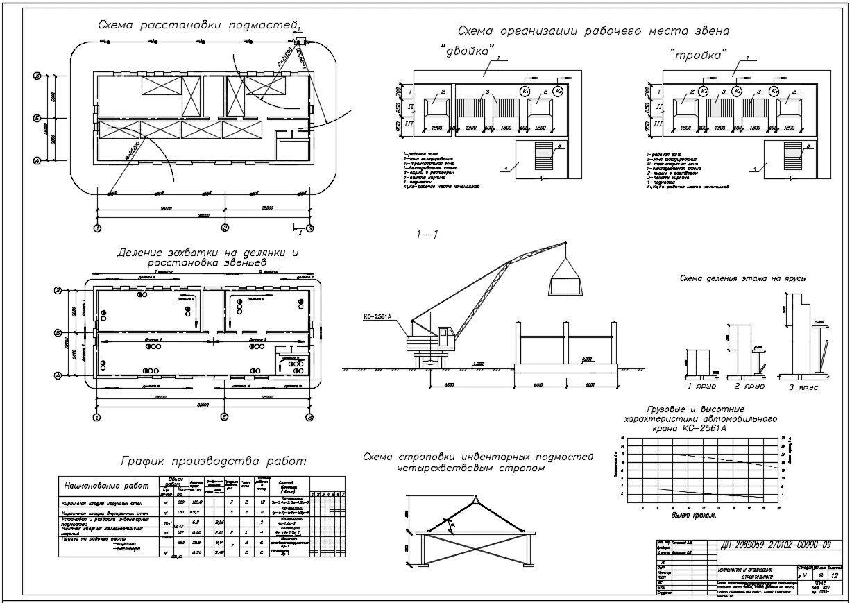
Проектирование временных зданий