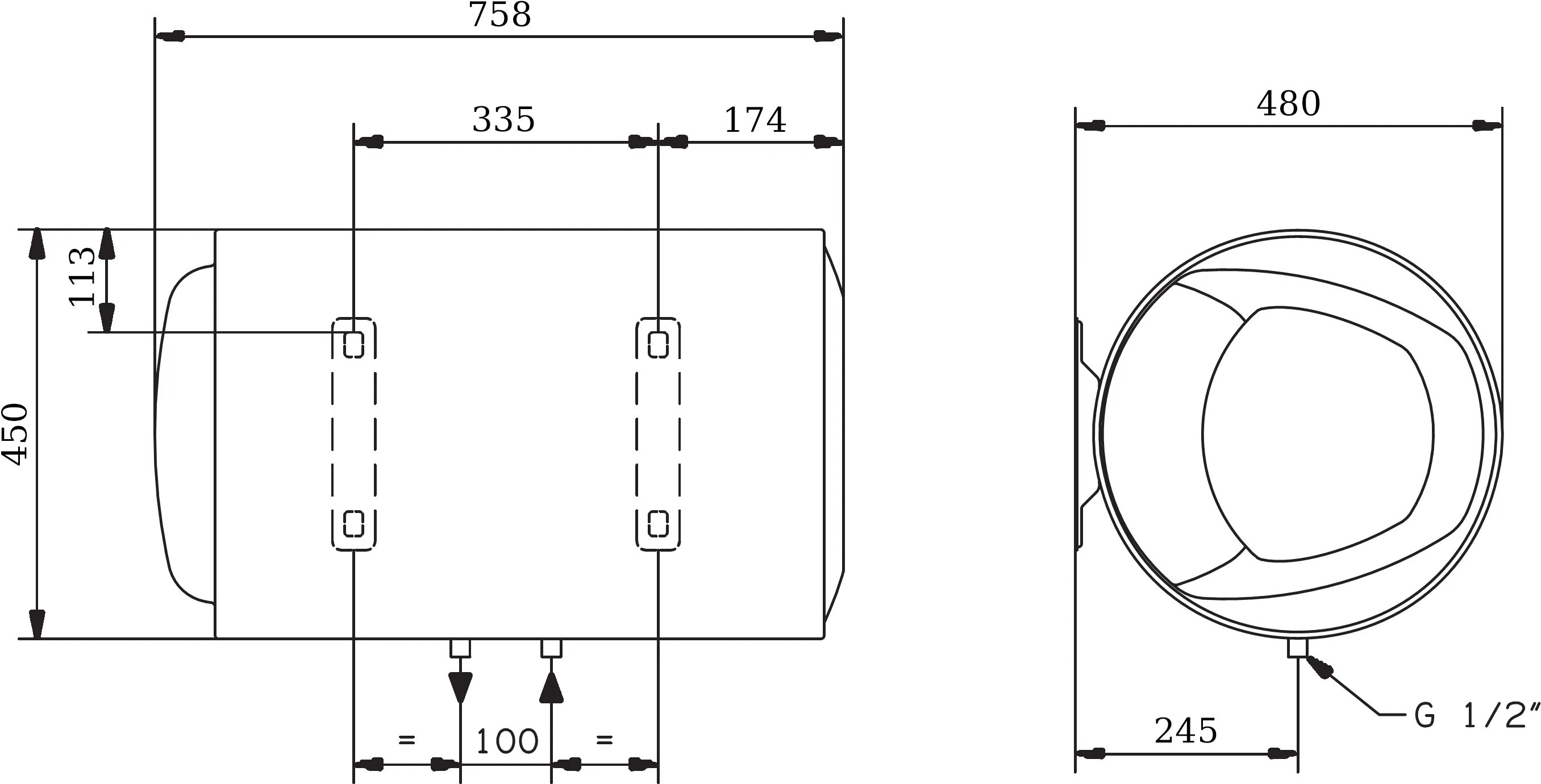
Pro 1 r abs