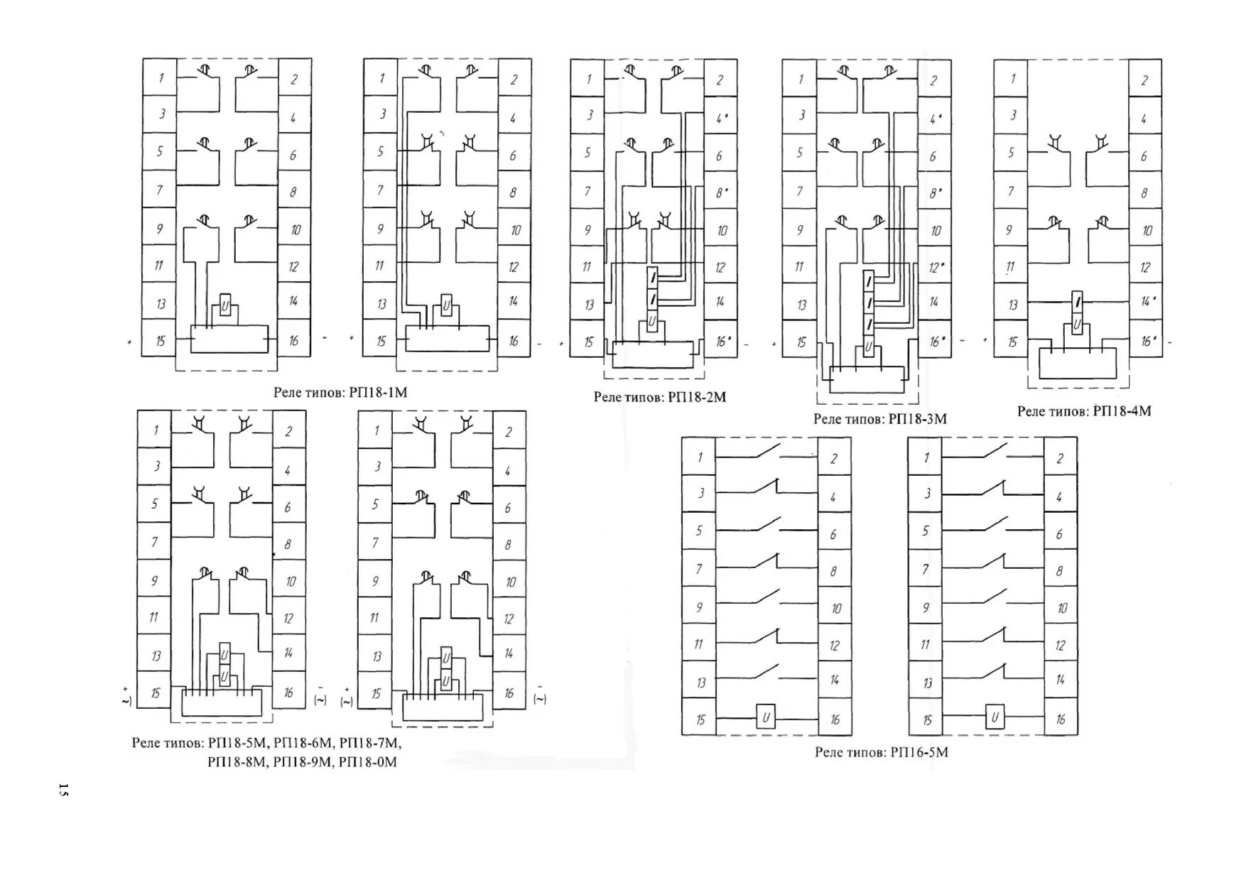
Приложение рп 18