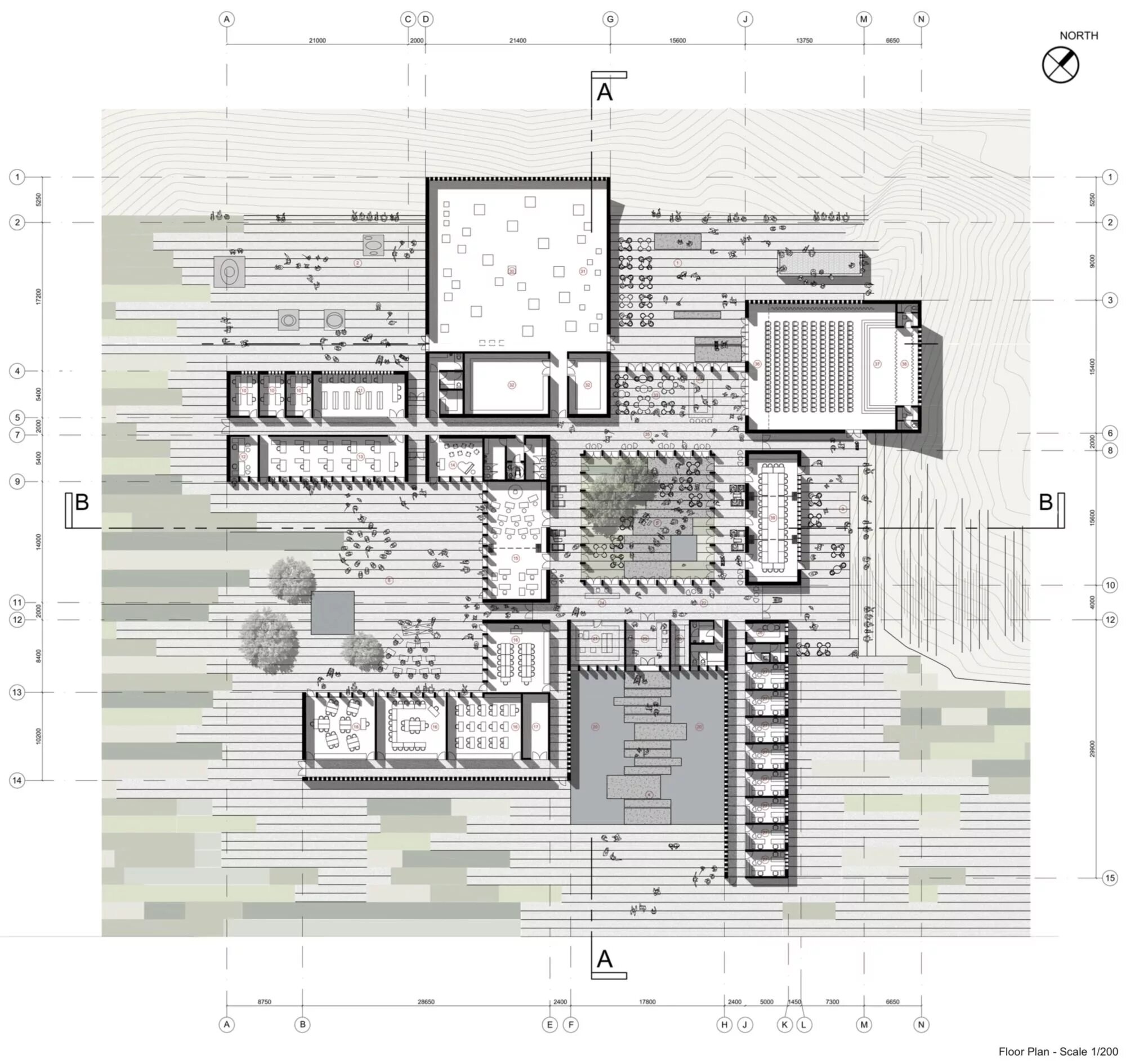
Presentation plan