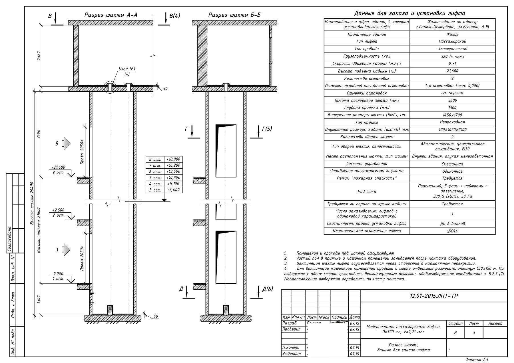
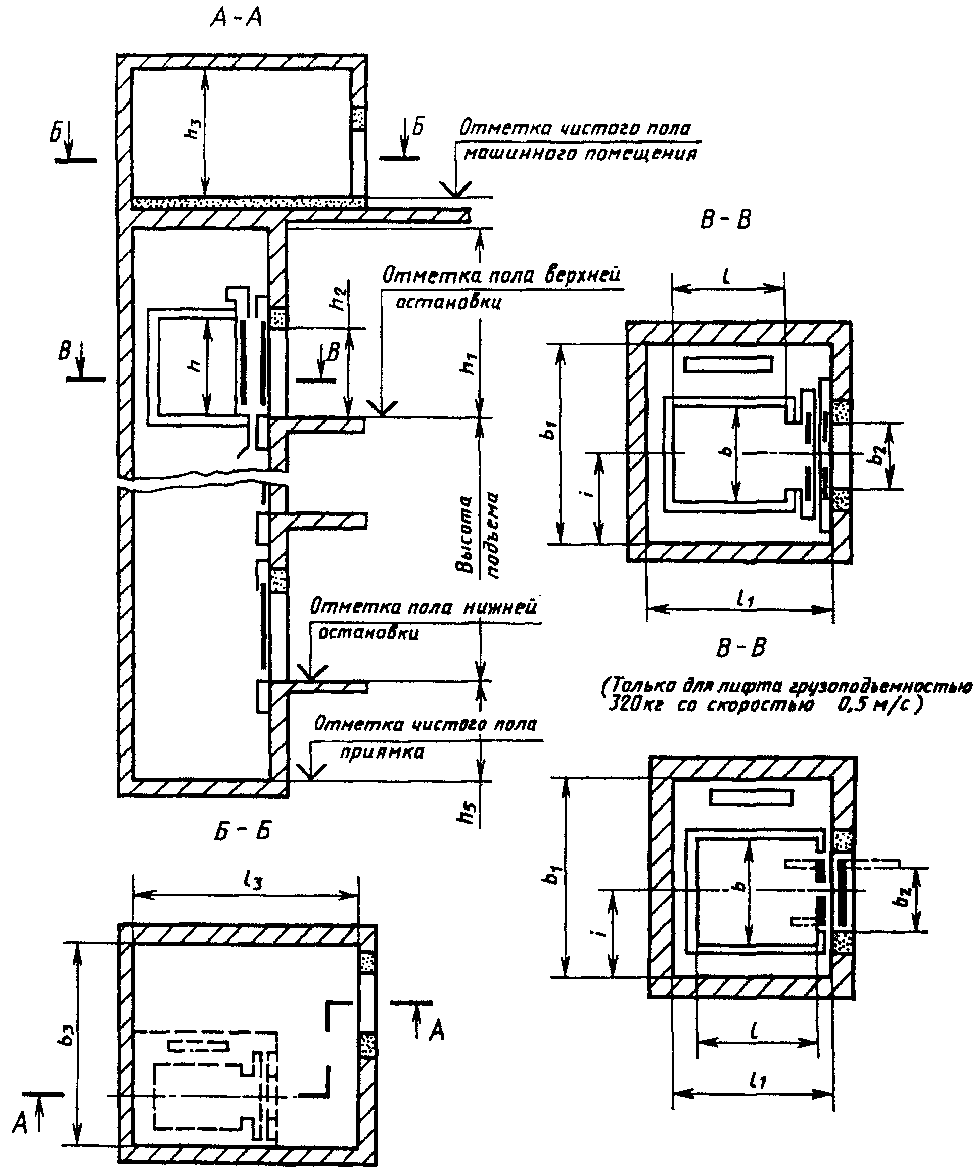
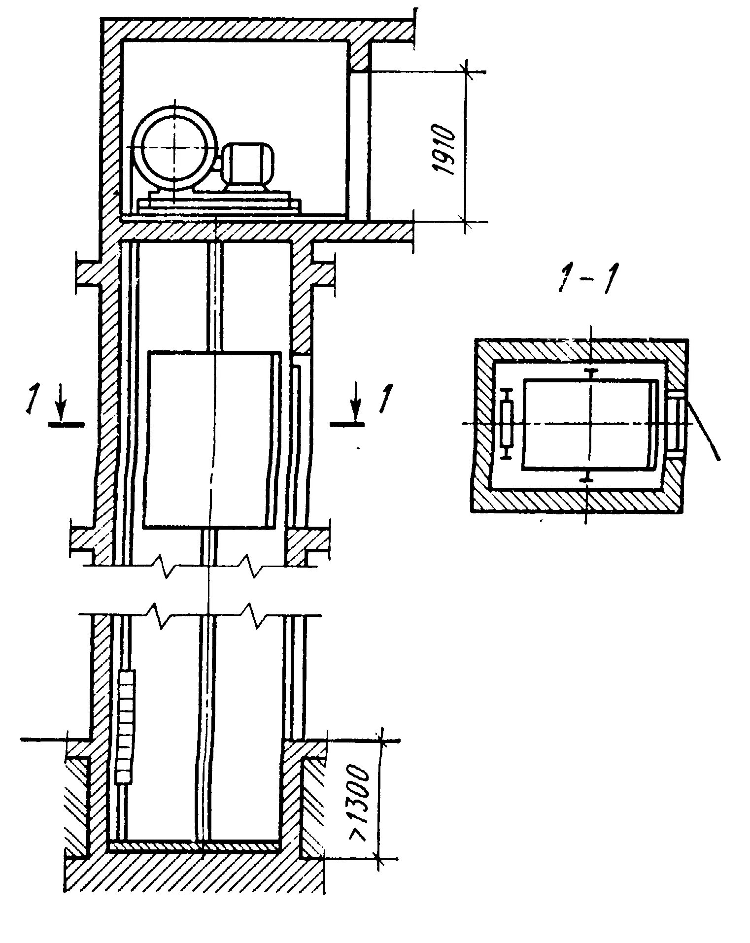
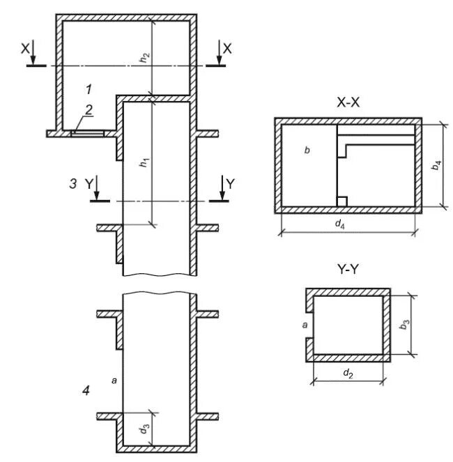
Помещение лифта как называется