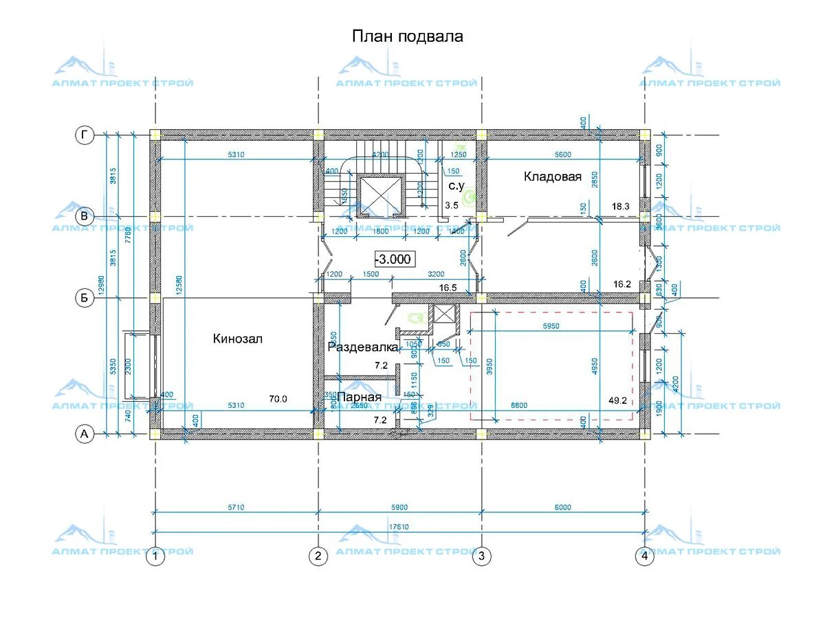
Подвал в административном здании