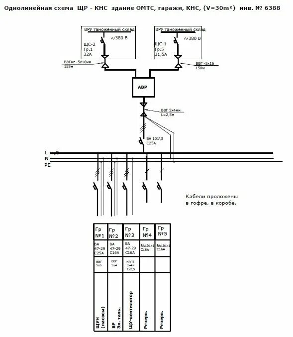
Подключение 0.4 кв