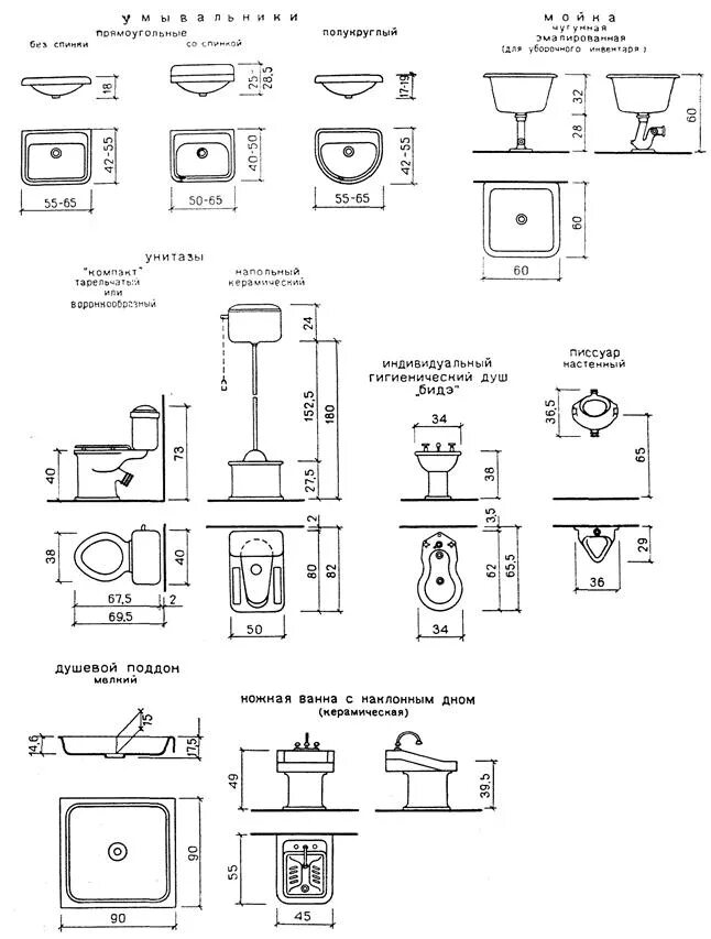
Площадь уборочного инвентаря