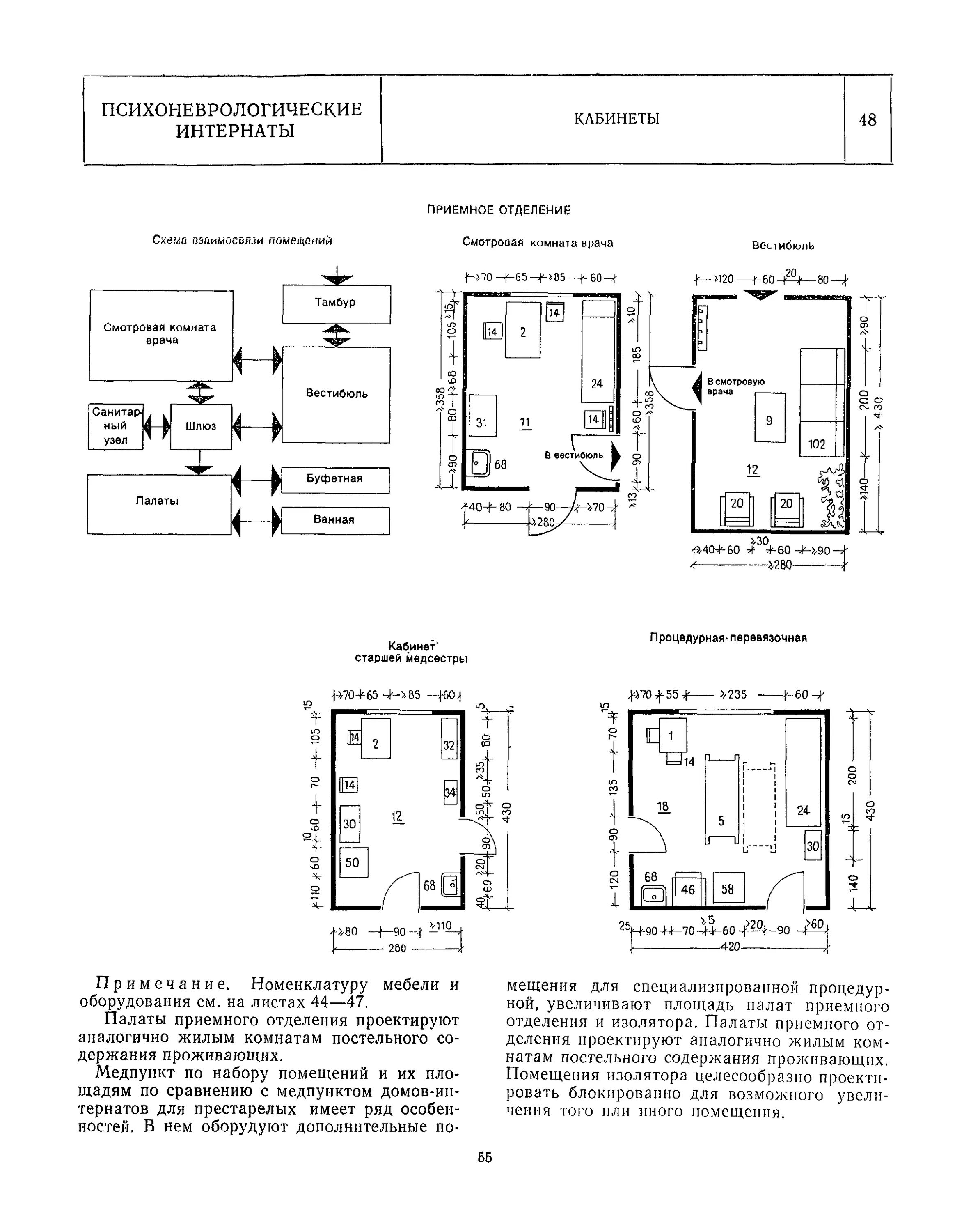
Площадь палаты изолятора