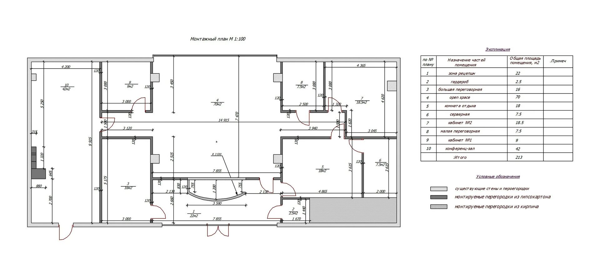
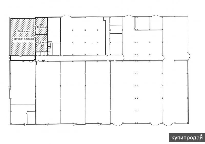
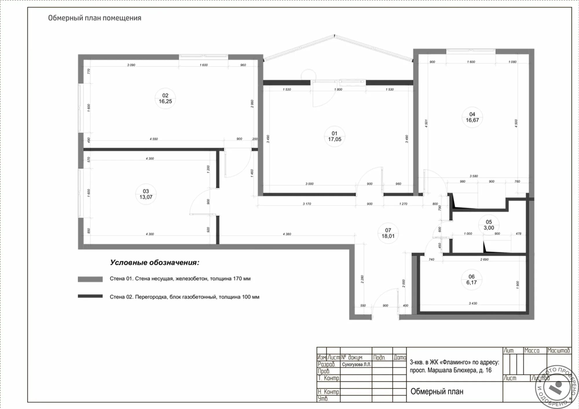
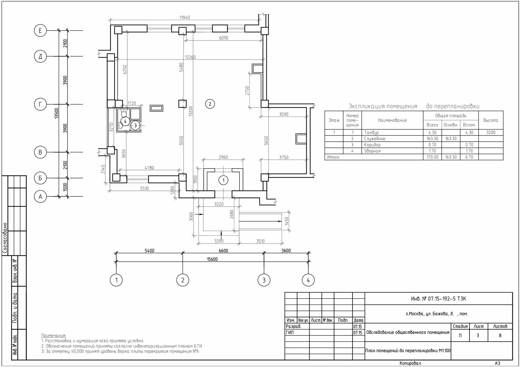
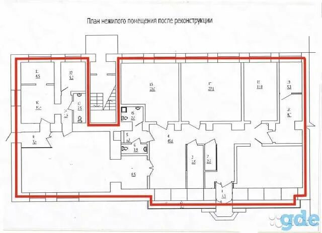
Площадь нежилого помещения