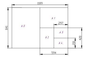
Площадь листа а1 в квадратных метрах