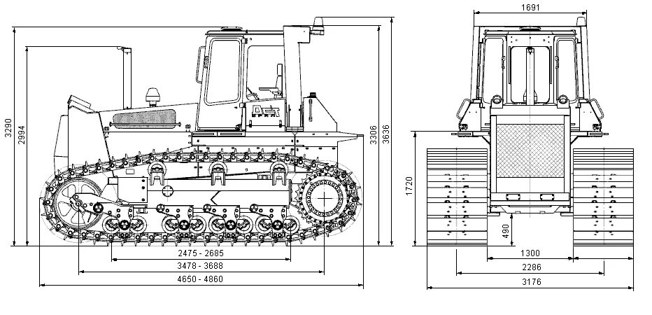
Площадь гусениц трактора