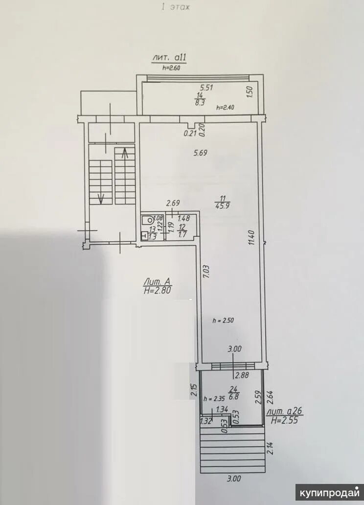
Площадь 72 а