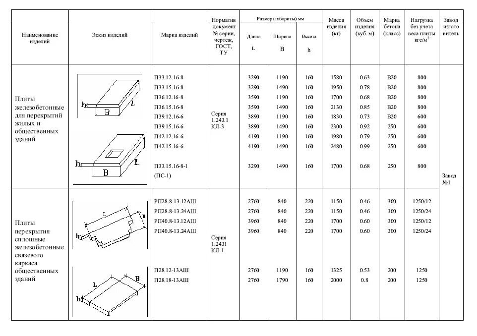
Плитам соответствуют