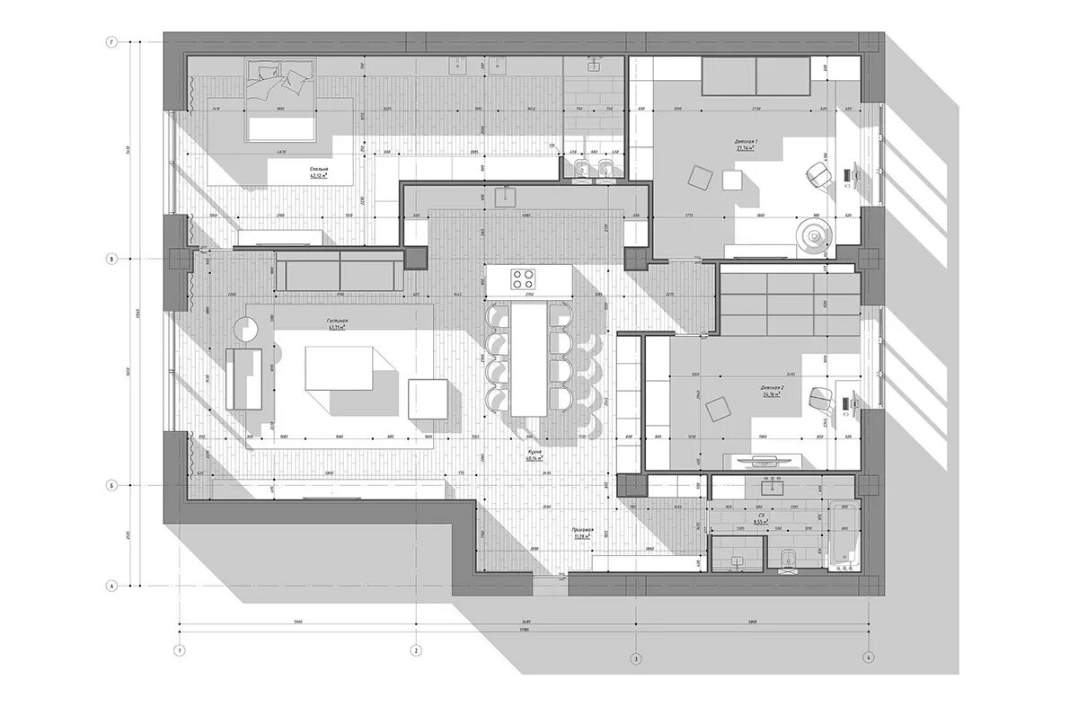
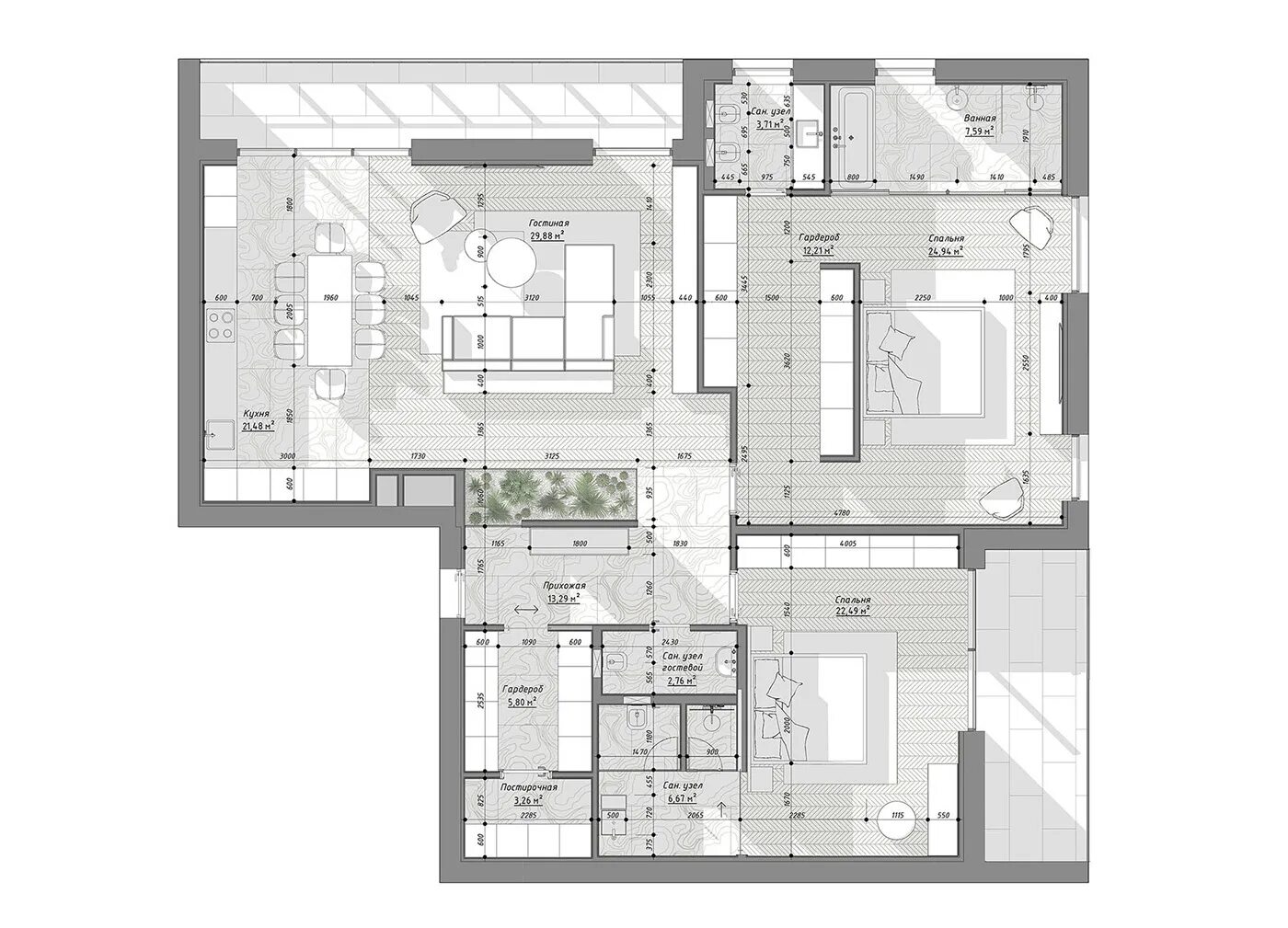
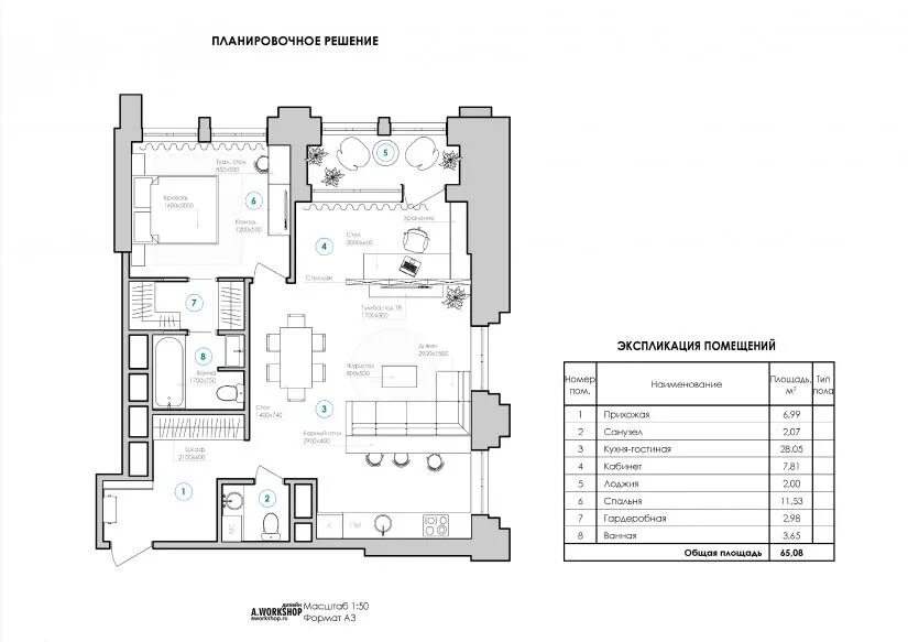
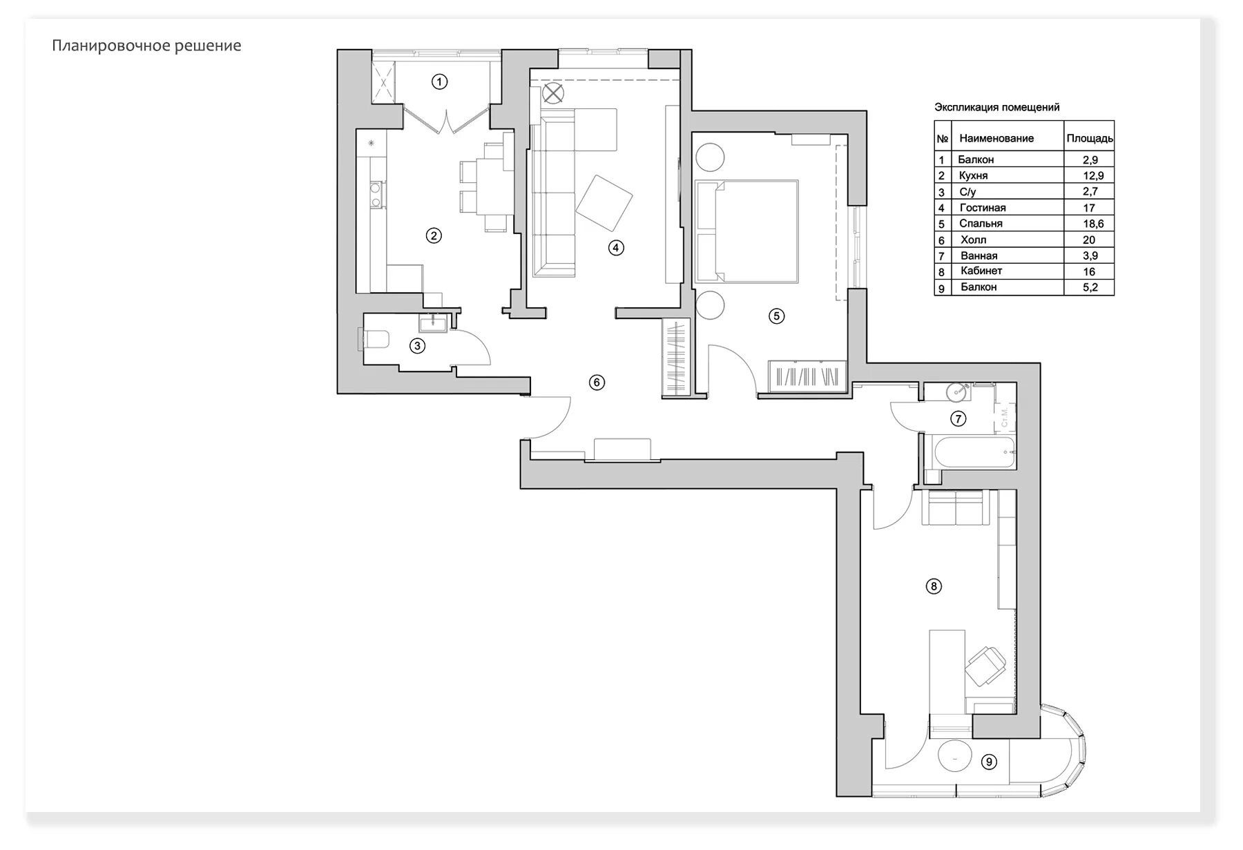
Планировочные решения помещений