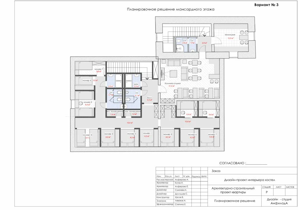
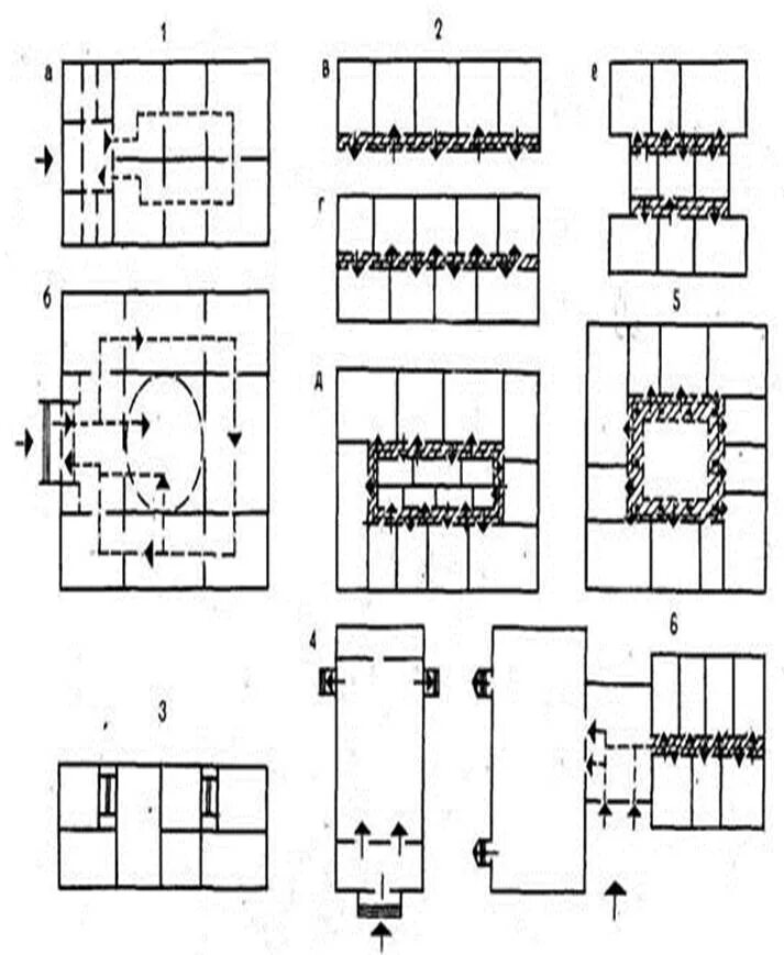
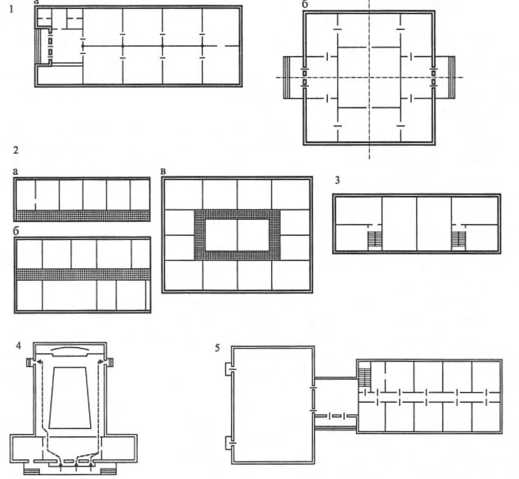
Планировочное решение общественных зданий