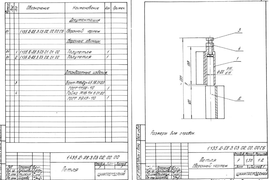
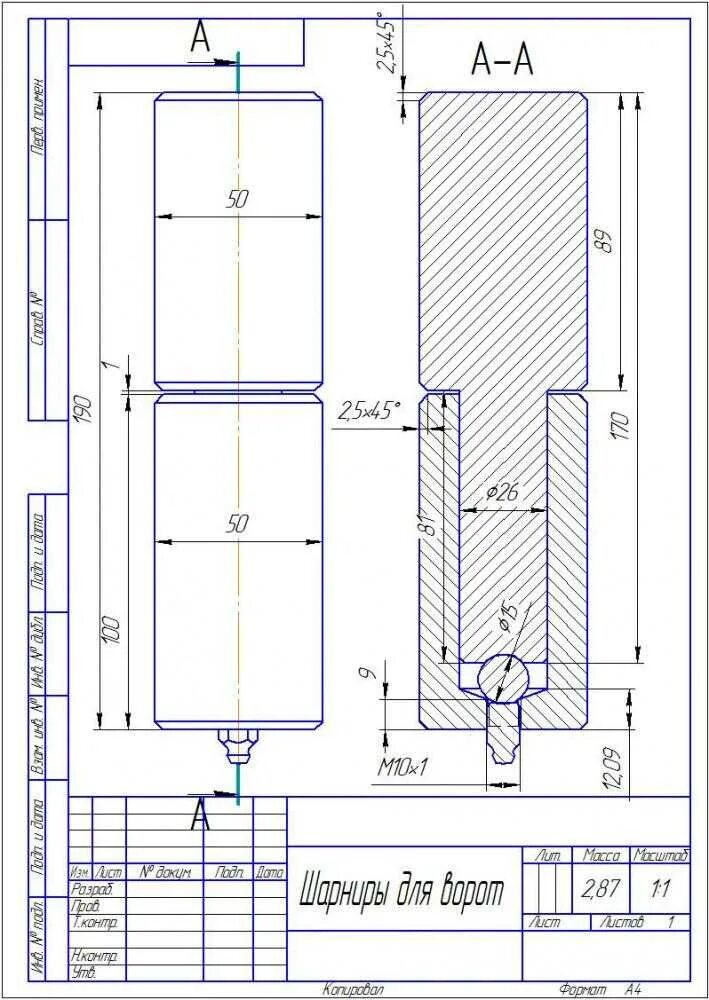
Петля чертеж с размерами