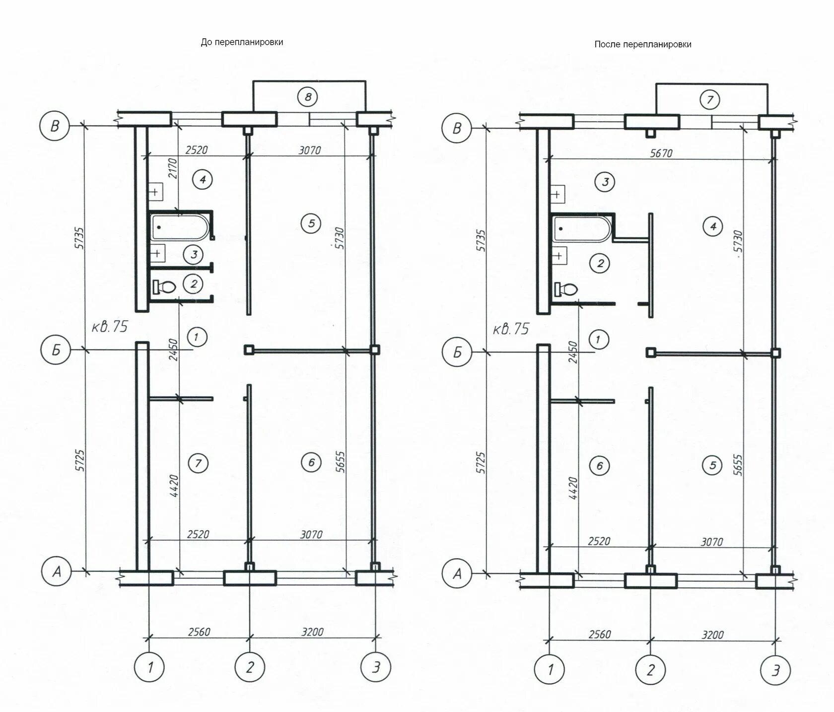
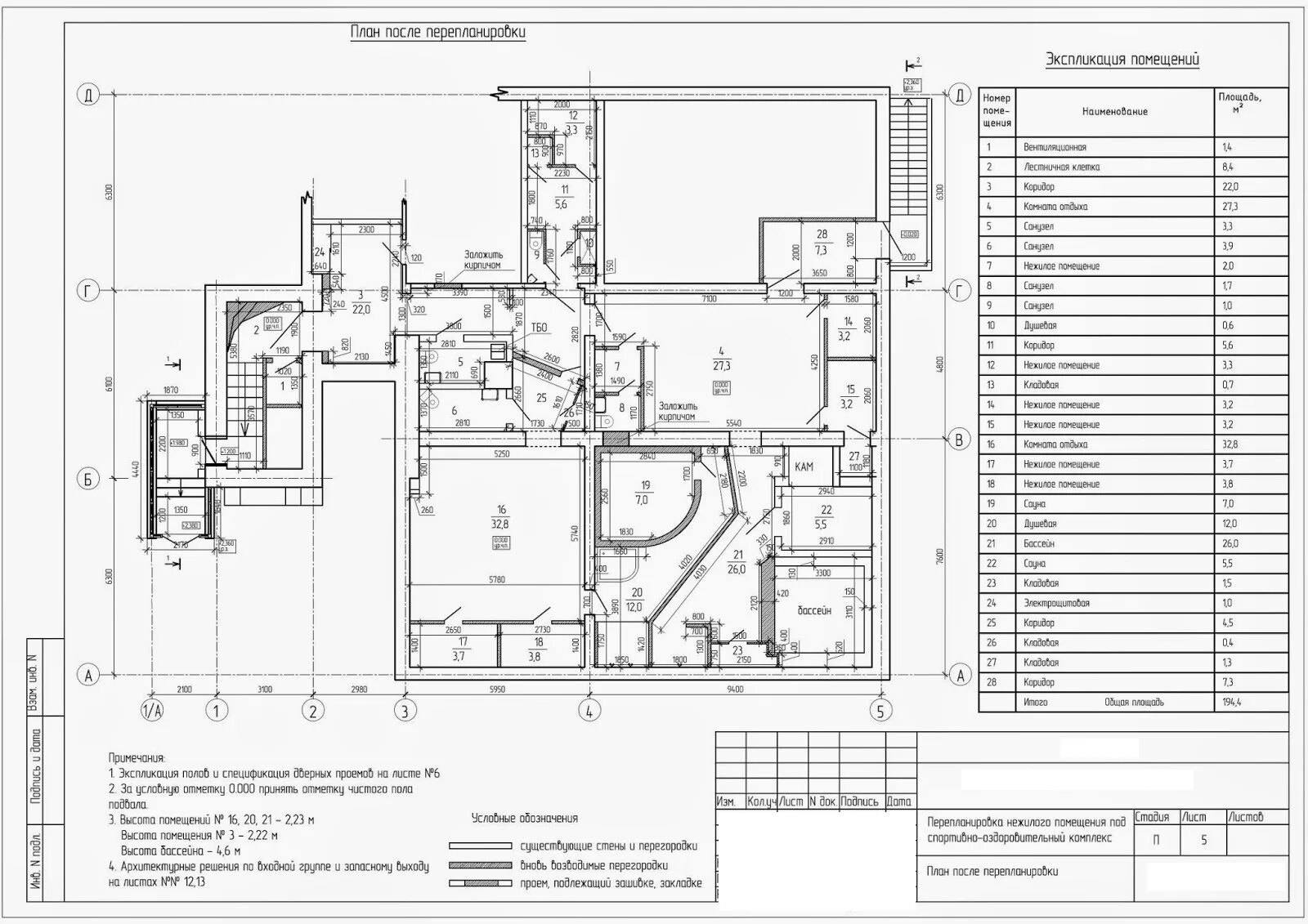
Перепланировка муниципального помещения