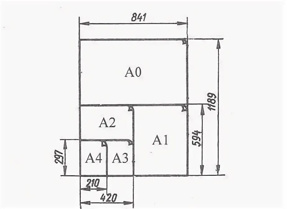
Параметры а0