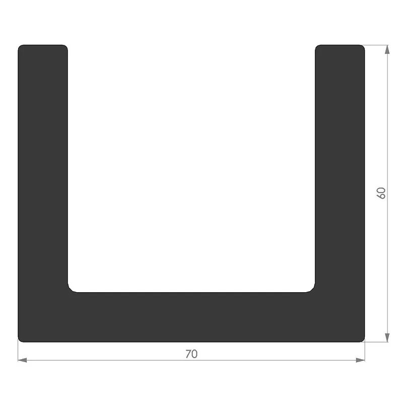
П образные элементы