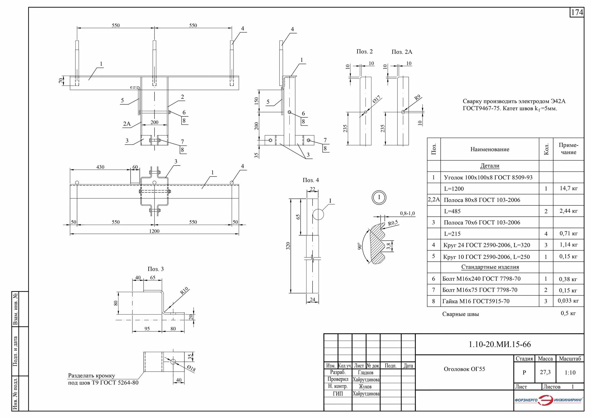
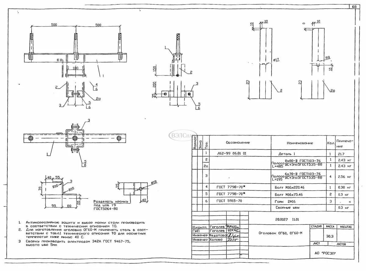
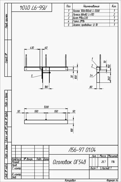
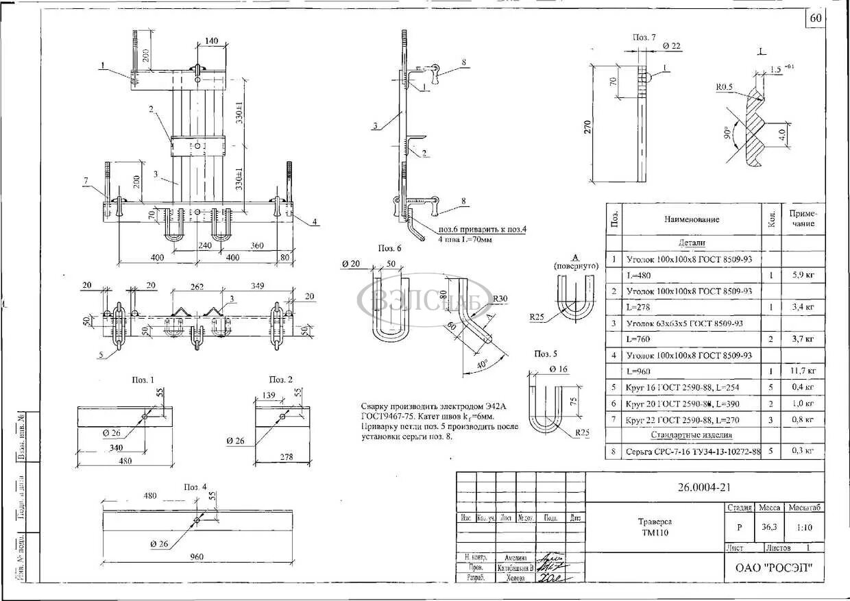
Ог 1 2 нет