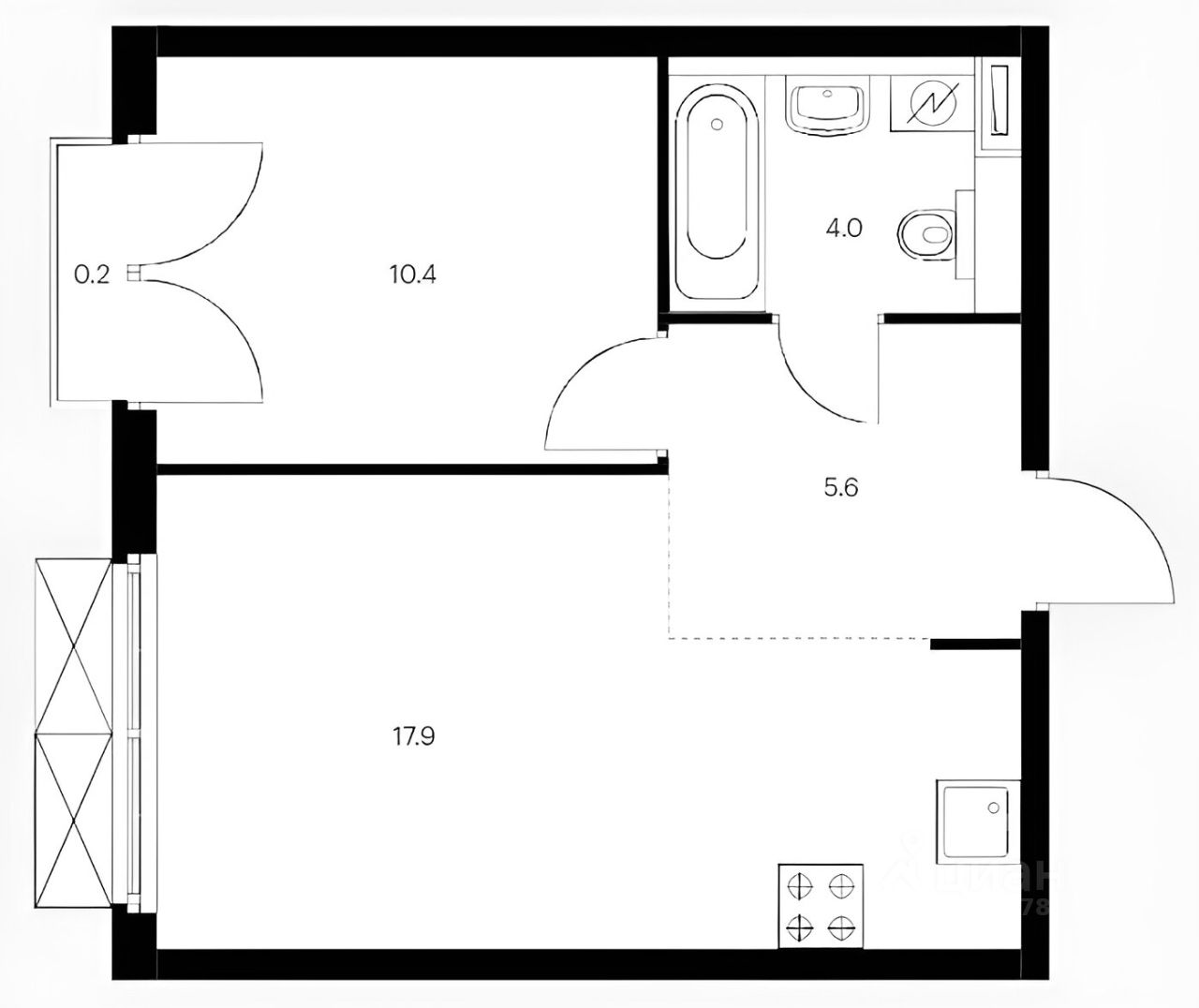
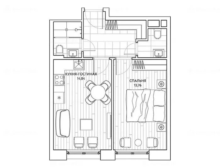
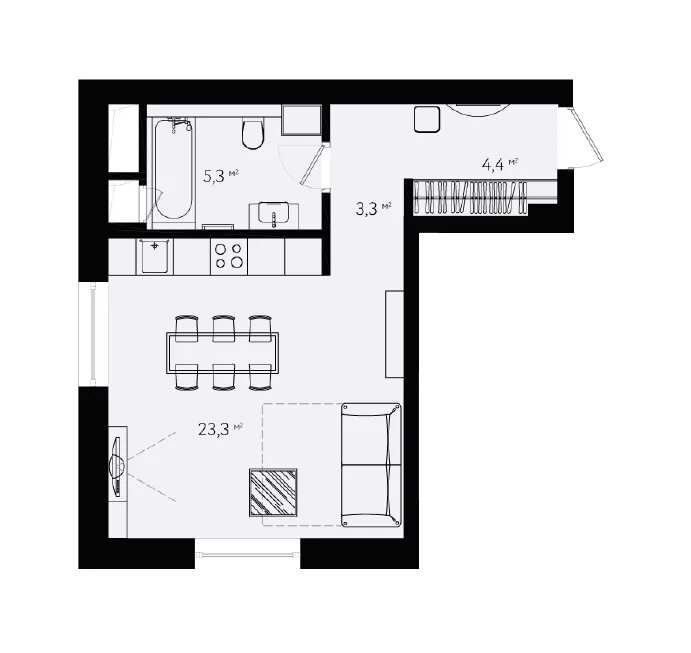
Однокомнатная квартира филевский парк