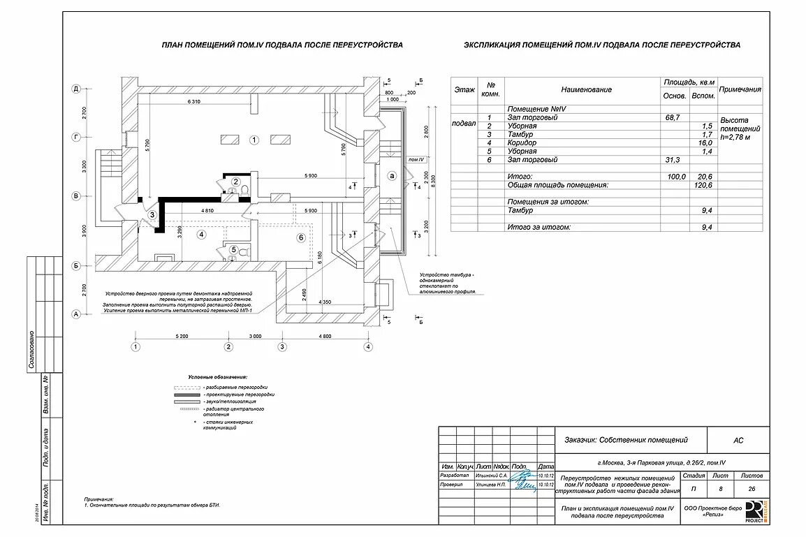
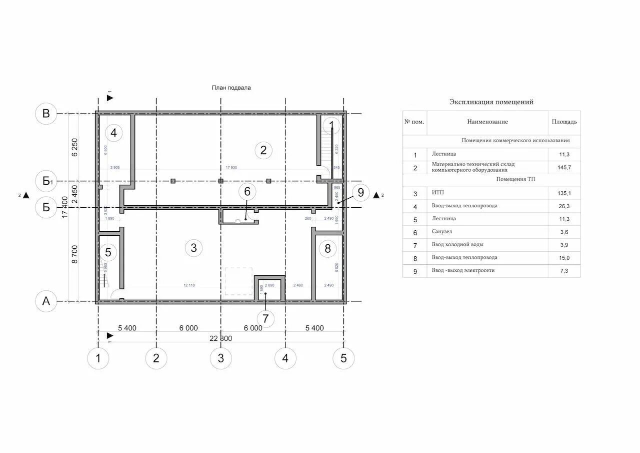
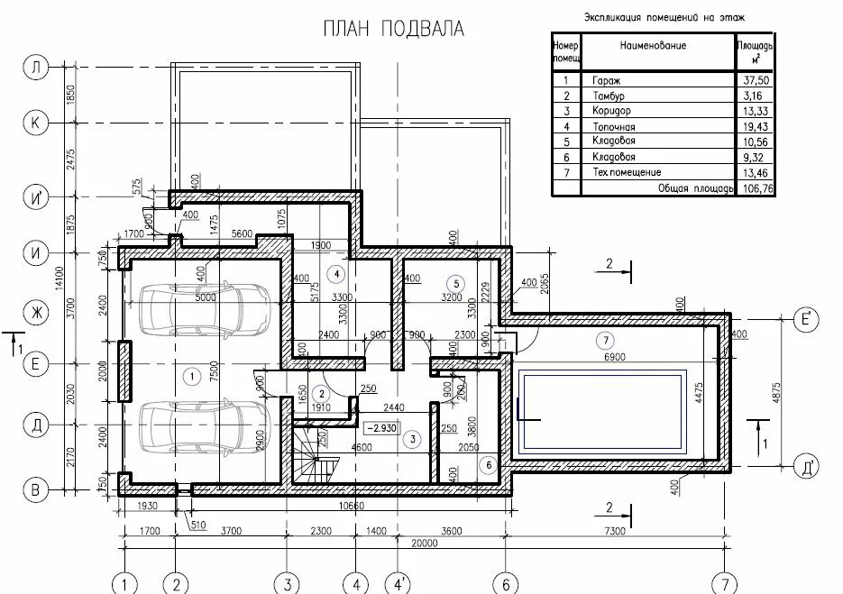
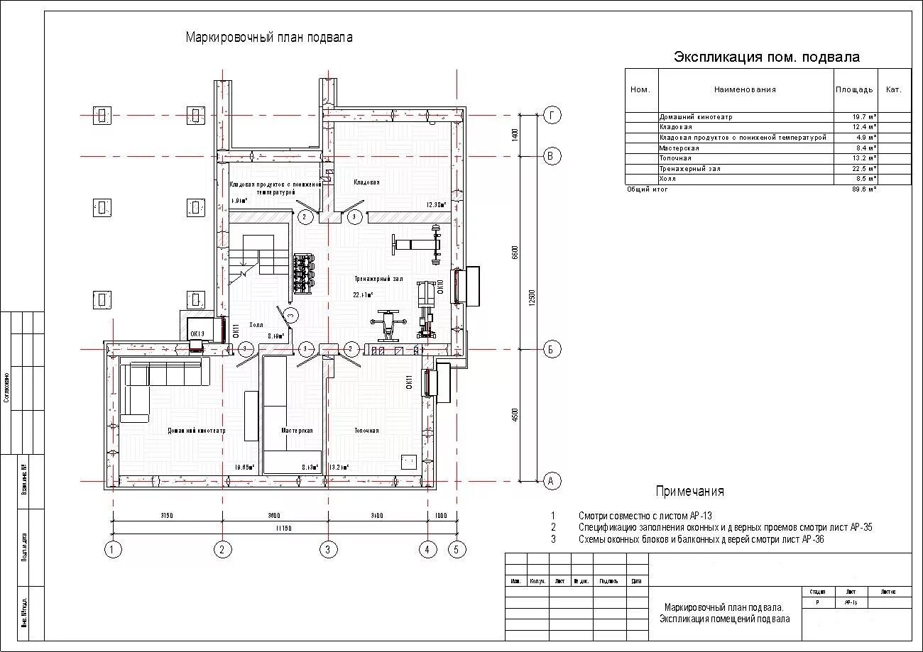
Общая площадь здания подвал