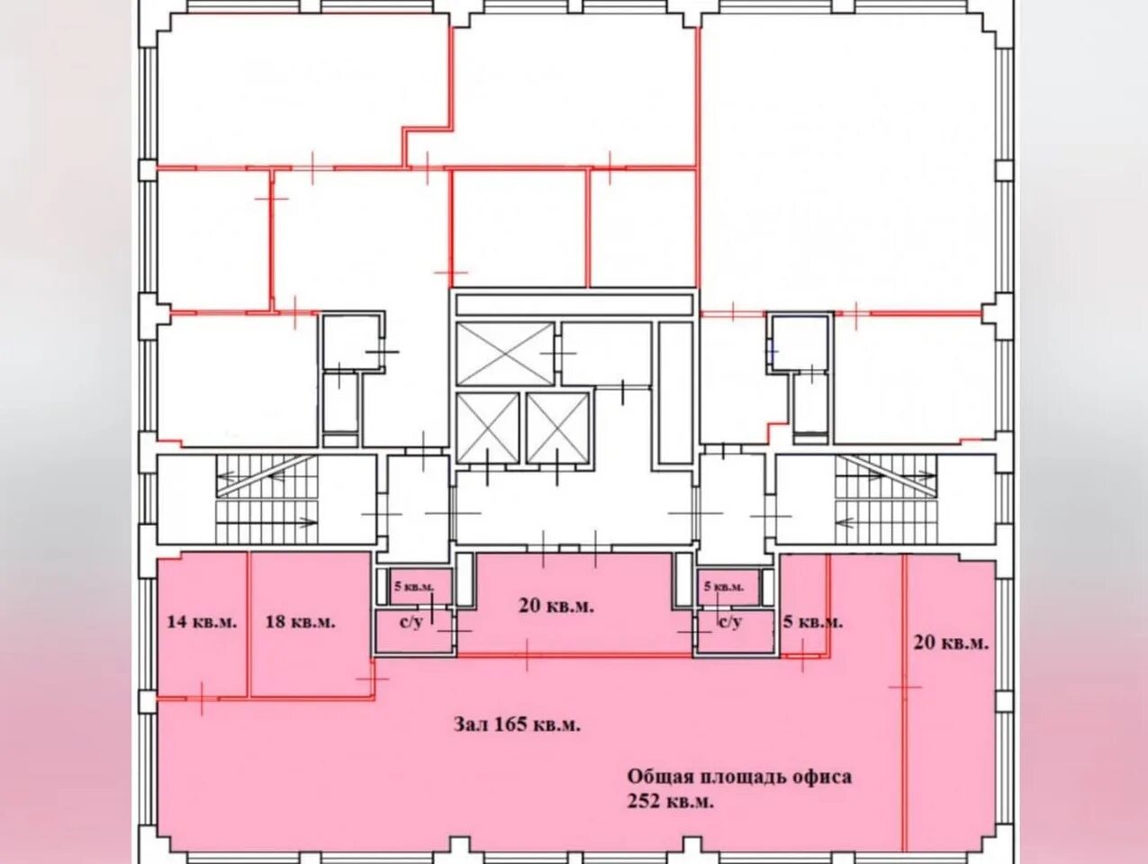
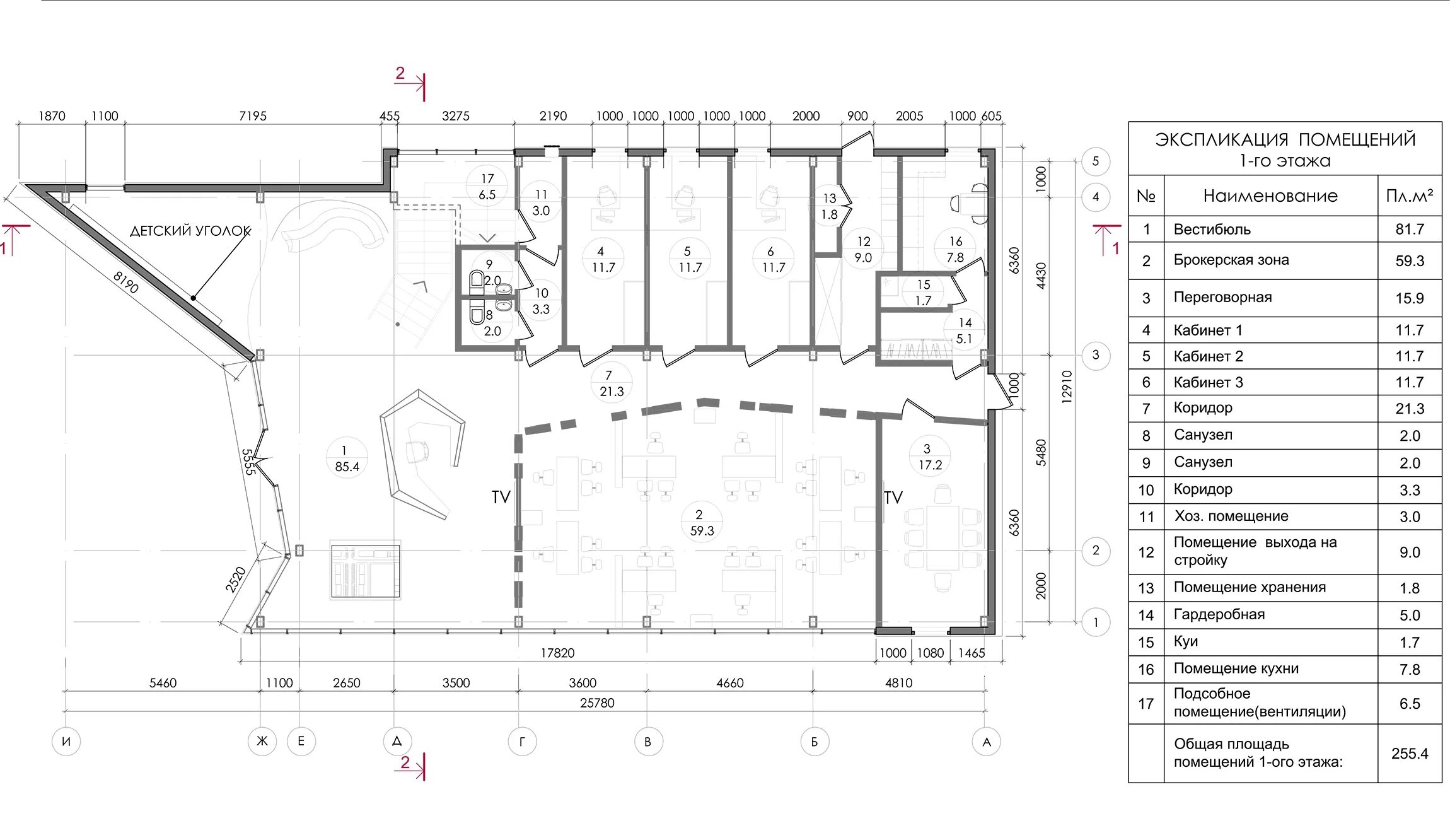
Общая площадь офисного здания