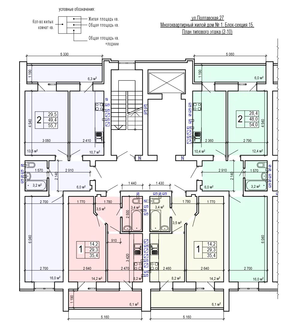
Общая площадь мкд