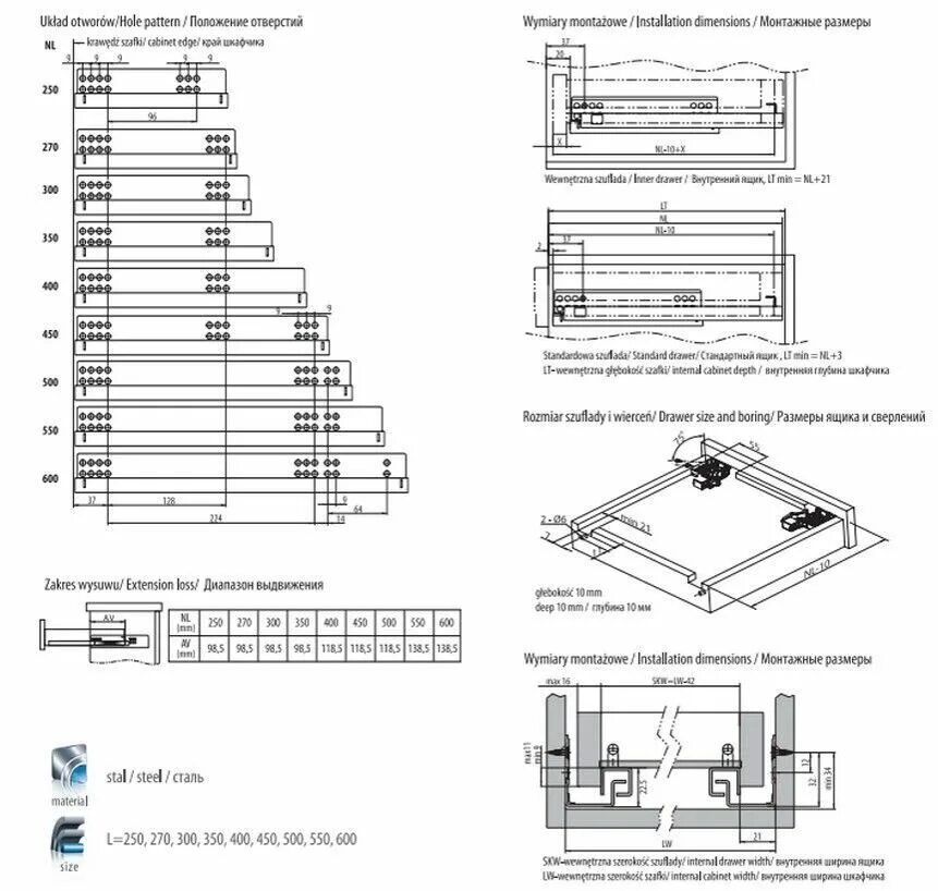
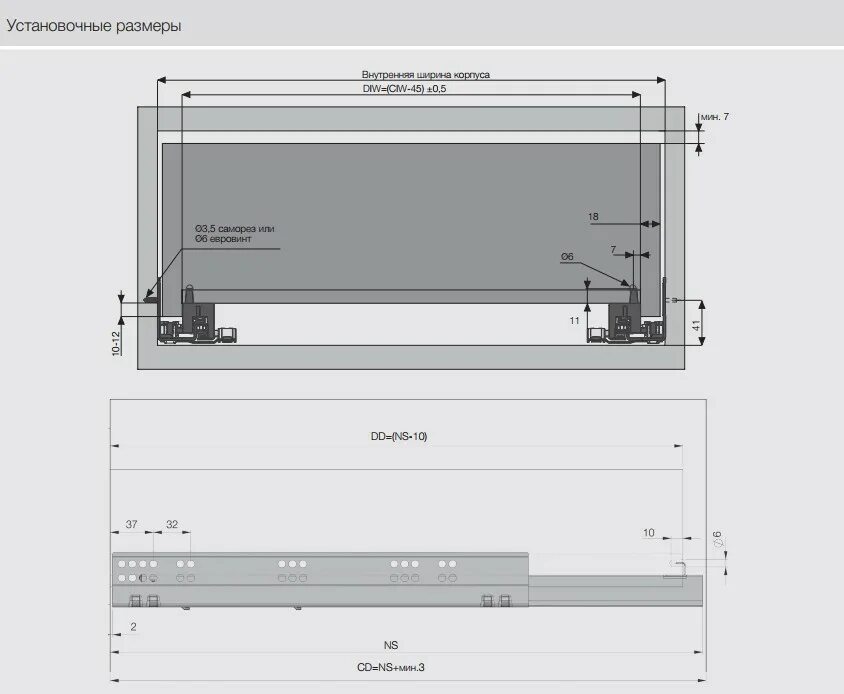
Направляющие скрытого монтажа пуш опен