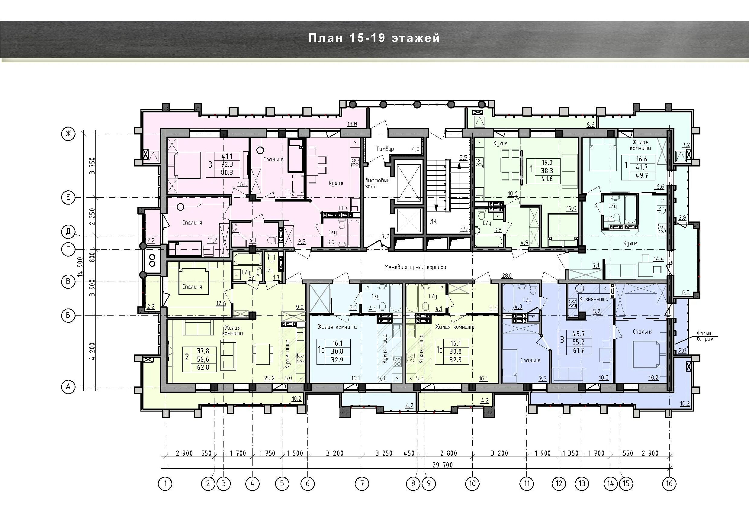
На вторых этажах расположены жилые