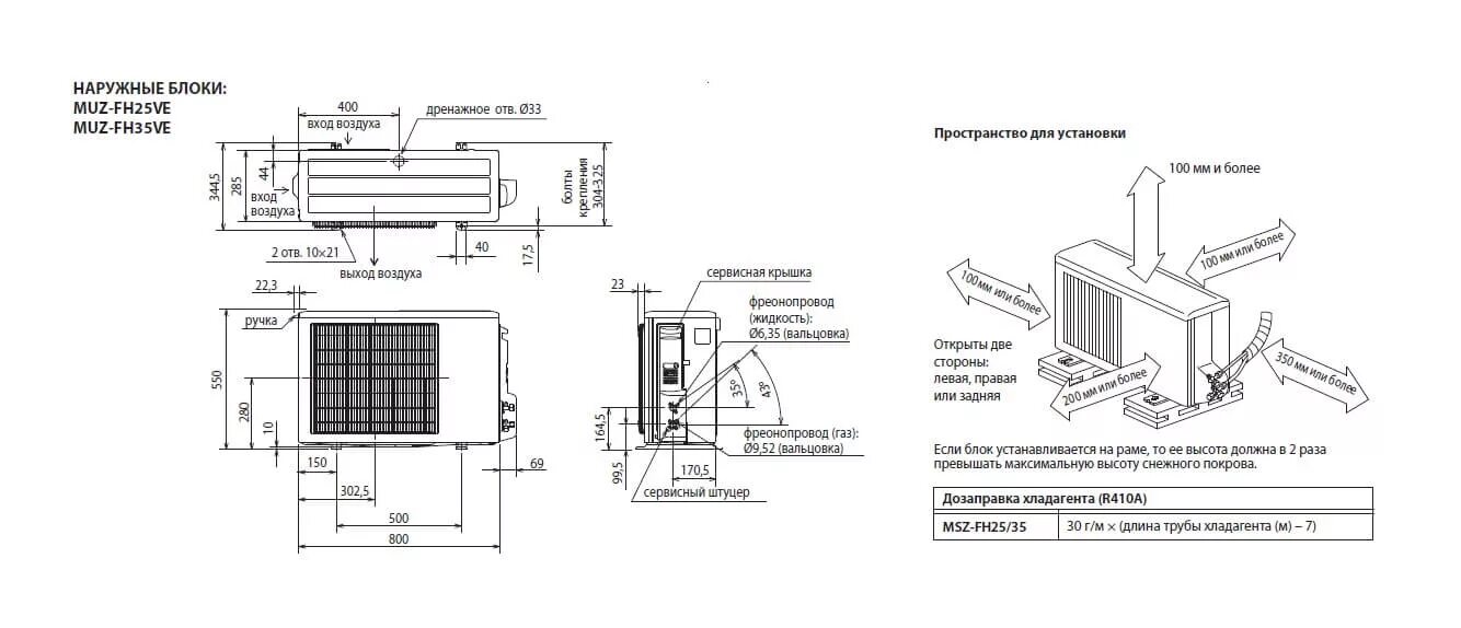
Минимальная длина трассы кондиционера сплит системы