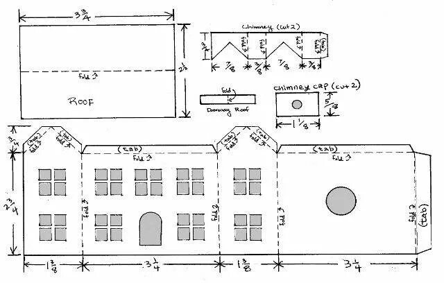
Макет дома из бумаги с размерами