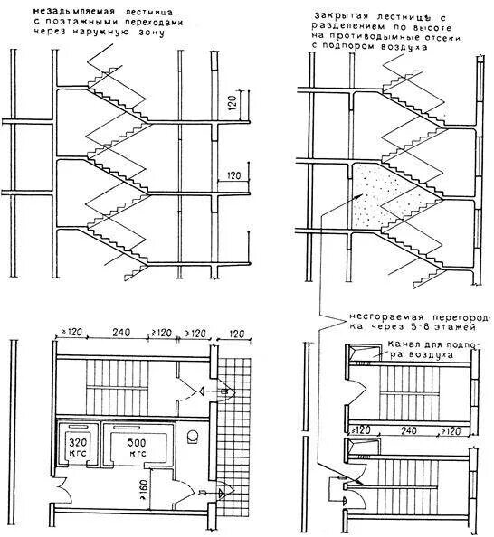
Лестничных клеток допускается предусматривать