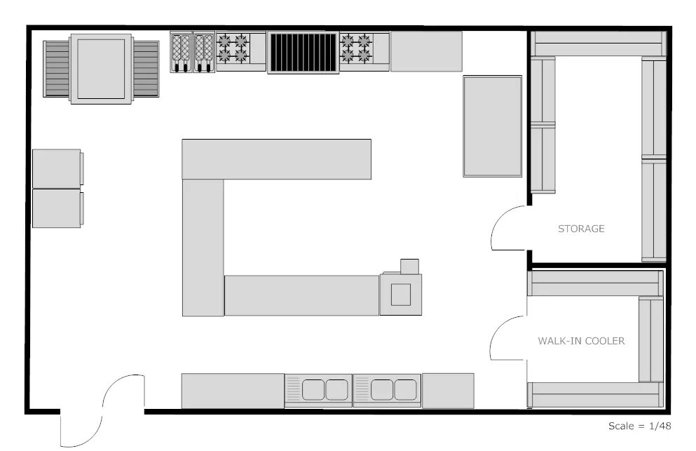
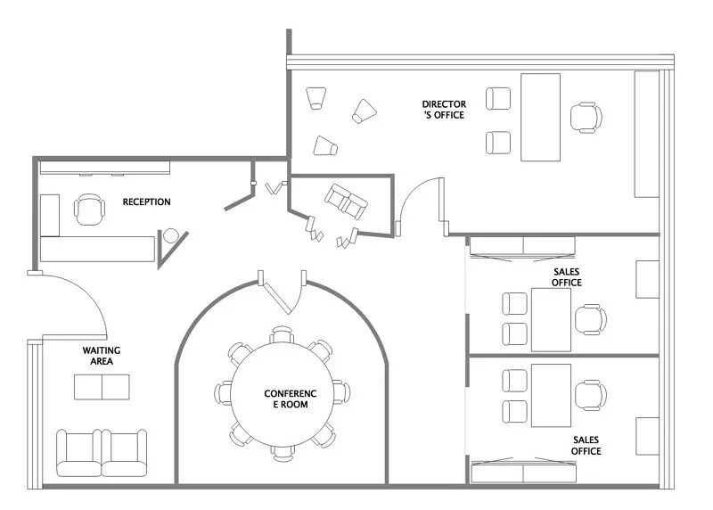
Layout large