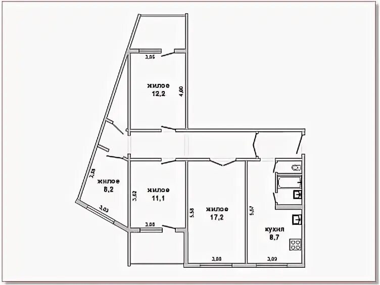
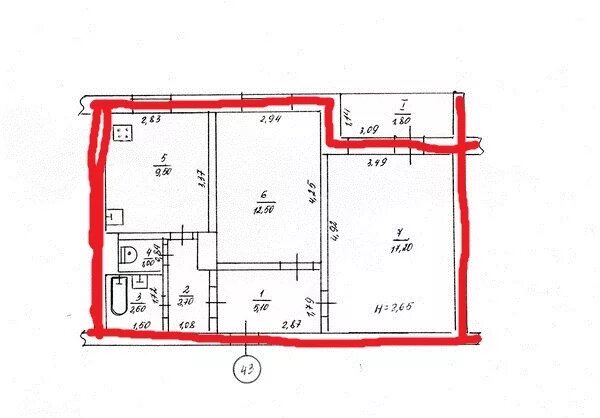
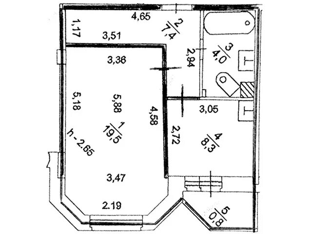
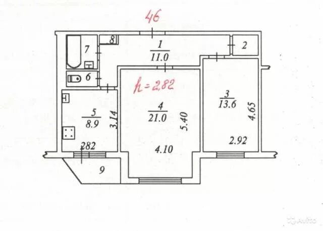
Квадратура квартиры по адресу