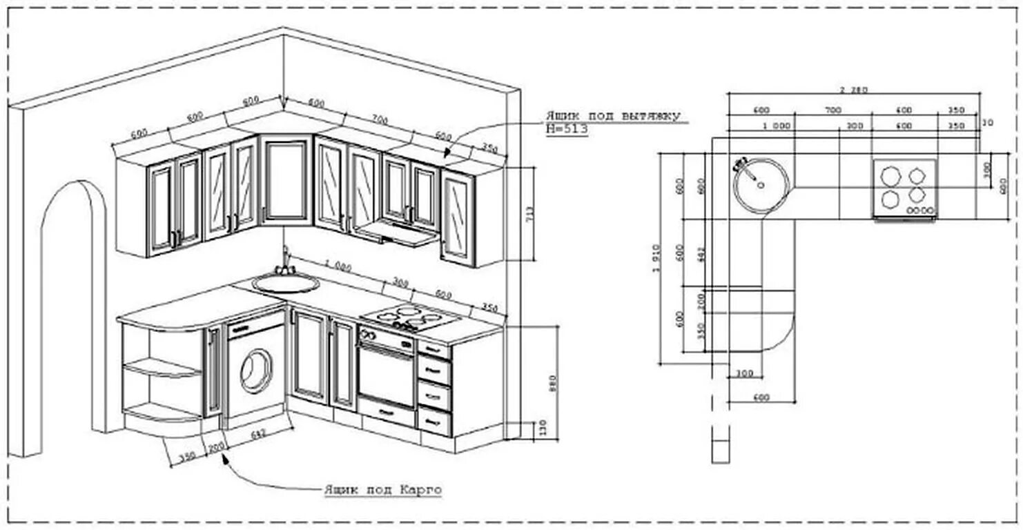
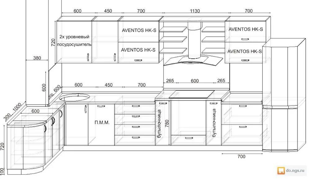
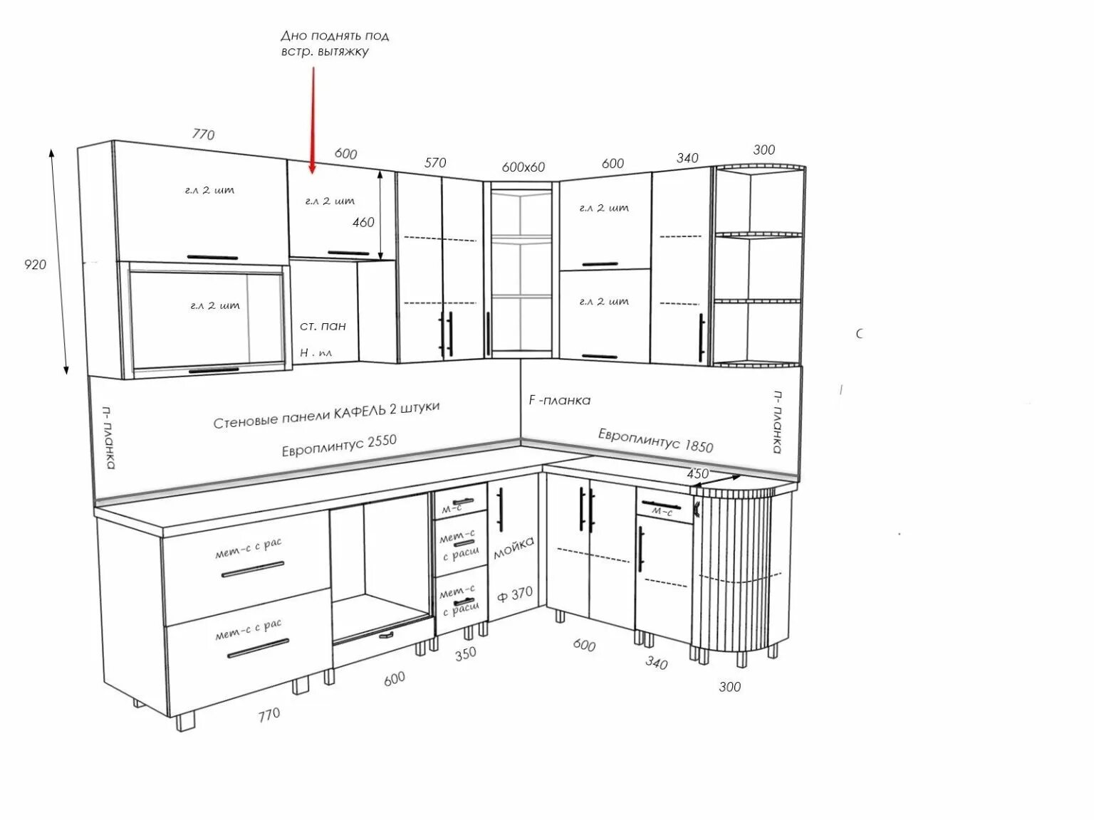
Кухня чертежи и схемы